| ID # | 11414053 |
| Detalji nekretnine | 4 spavaća soba, 2 kupaonica, garaža, klima uređaj, unutrašnjost: 2705 ft2, 251m2 (DOM): 331 days |
| Godina izgradnje | 2025 |
| Porezi (godišnje) | $14,194 |
| Podrum | Potpuna podrumska etaža |
| Vrsta garaže | Prilog |
| English Webpage | |
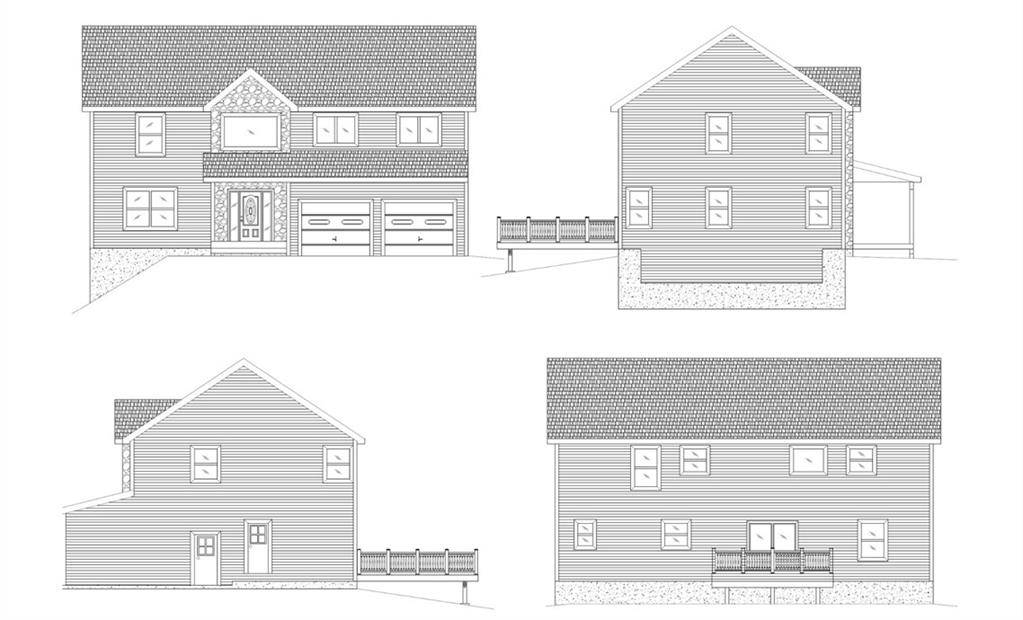
![]() |
NEW CONSTRUCTION!!! Check out this 4 Bedroom, 2.5 Bathroom Colonial nestled just outside of the Village of Walden and located in the Valley Central School District. This home is located a five minute drive from the center of the Village which offers an array of local eateries/restaurants, shopping center, close to all FIVE Village parks, a quarter mile from the Walden/Wallkill Walking Rail Trail, Wallkill River, and a short drive to most major highways including Interstate 84. This home will feature a comfortable floor plan - first floor open concept with a kitchen offering a plethora of cabinetry, open to the dining room and living room areas, entry foyer, half bathroom and access to the two car attached garage. Second floor features the owners suite with en-suite bathroom and sizeable closet, 3 additional bedrooms with shared full bathroom and separate laundry room. Inquire now, there may be time to choose your final touches, call now!







