| ID # | RLS20042032 |
| Detalji nekretnine | 20 spavaća soba, 20 kupaonica, unutrašnjost: 34277 ft2, 3184m2 (DOM): 224 days |
| Godina izgradnje | 1899 |
| Porezi (godišnje) | $15,708 |
| Autobus | 0 minuta: B8 |
| 1 minuta: B49 | |
| 2 minuta: B44, B44+ | |
| 4 minuta: B103, B41, BM2 | |
| 6 minuta: B11, B6 | |
| 9 minuta: BM1, BM3, BM4 | |
| Metro | 2 minuta: 2, 5 |
| Vlak | 2.7 milja: "Nostrand Avenue" |
| 3.4 milja: "Atlantic Terminal" | |
![]() |
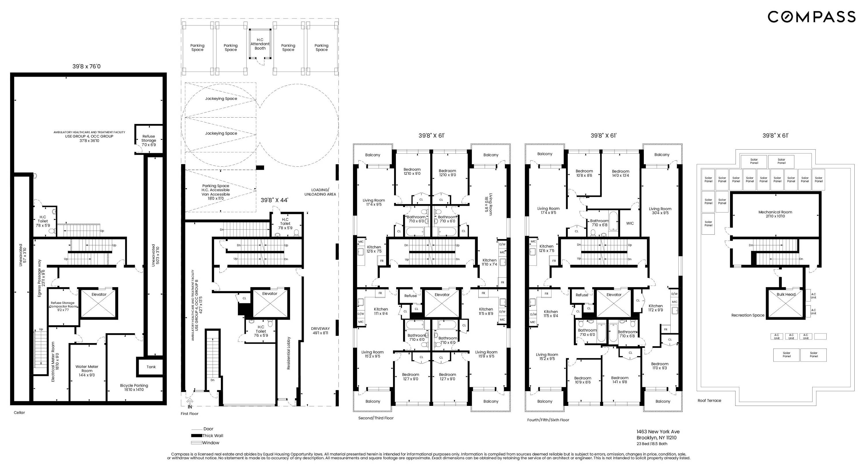
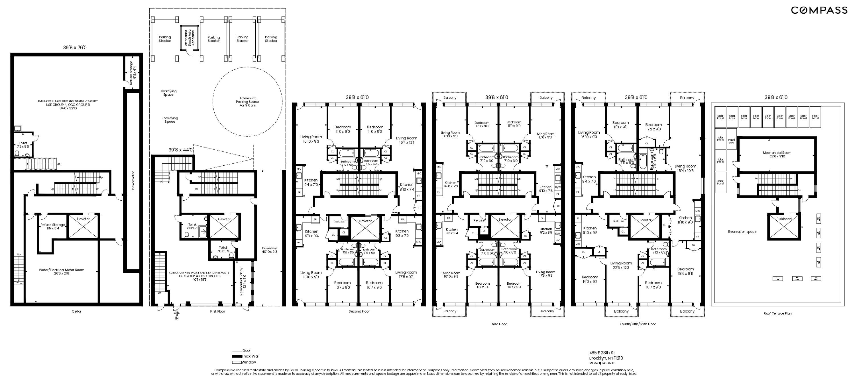
Naš tim je angažiran na ekskluzivnoj osnovi da omogući prodaju 485 E. 28th Street i 1463 New York Avenue, para novih razvijenih objekata s preostalim 33+ godina na svojim 421a poreznim poticajima u prosperitetnom Flatbushu.
Svaka zgrada s dizalom uključuje 18 jedinica na otprilike 17,000 četvornih feet i nalazi se samo dva ulica od 2/5 metro linije. Sa završnom obradom kvalitete kondomiuma i više privatnih balkona, oba objekta su potpuno električna, čista, učinkovita i jednostavna za upravljanje. Postoji dodatni potencijal aktiviranjem prostora u podrumu i na krovu za sadržaje, a prostori zajedničke koristi mogli bi omogućiti buduću stambenu konverziju prema nedavnim promjenama Grada Da/UAP.
Najmovi u Flatbushu povećali su se otprilike 22% u posljednje tri godine, s trenutnim tržišnim razinama za nove razvijene objekte koje u prosjeku iznose oko 62 USD/kvadratni stopa. Ove zgrade koje su 95% zauzete nude snažan prihod s jasnim potencijalom za dovođenje jedinica ispod tržišnih cijena na punu najamninu. Iznosi od 6-cap s lenderom koji je spreman financirati bliže 5.5%, predstavljaju rijetku priliku za stjecanje imovine s niskim troškovima održavanja i dugoročnim stabilnim novčanim tokom i značajnim potencijalom. Dostupno pojedinačno ili kao portfelj.
Our team has been retained on an exclusive basis to facilitate the sale of 485 E. 28th Street and 1463 New York Avenue, a pair of new developments with 33+ years remaining on their 421a Tax Abatements in thriving Flatbush.
Each elevator building includes 18 units across roughly 17,000 square feet and is located just two blocks from the 2/5 subway line. Featuring condo-quality finishes and multiple private balconies, both properties are fully electric, clean, efficient, and easy to manage. There’s additional upside through activation of the basement and roof areas for amenities, and the community facility spaces may allow for future residential conversion under recent City of Yes/UAP changes.
Rents in Flatbush have risen approximately 22% over the past three years, with current market levels for new development averaging around $62/SF. These 95% occupied buildings offer strong in-place income with clear potential to bring under-market units to full rent. Asking a 6-cap with a lender in place willing to finance closer to 5.5%, they present a rare opportunity to acquire low-maintenance, long-term assets with stable cash flow and meaningful upside. Available individually or as a portfolio.
This information is not verified for authenticity or accuracy and is not guaranteed and may not reflect all real estate activity in the market. © 2026 The Real Estate Board of New York, Inc., All rights reserved.







