| ID # | RLS20049777 |
| Detalji nekretnine | 5 spavaća soba, 3 kupaonica, 2 WC, perilica posuđa, perilica rublja, sušilica rublja, unutrašnjost: 2880 ft2, 268m2 (DOM): 69 days |
| Godina izgradnje | 1899 |
| Porezi (godišnje) | $3,696 |
| Autobus | 1 minuta: B43, B52 |
| 4 minuta: B15, B38 | |
| 7 minuta: B26 | |
| 8 minuta: B44 | |
| 9 minuta: B44+ | |
| 10 minuta: B25 | |
| Vlak | 0.7 milja: "Nostrand Avenue" |
| 1.7 milja: "Atlantic Terminal" | |
![]() |
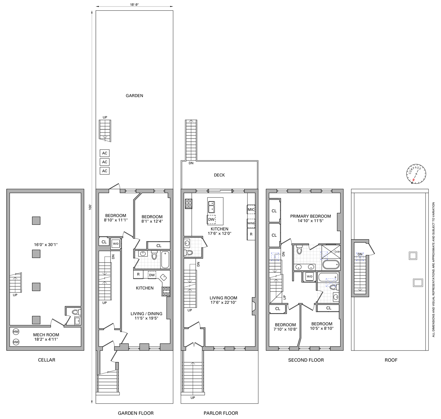
Izgrađena 1899. godine, ulica 444 Quincy je pomno ponovno zamišljena trokatnica s dva stana od opeke koja spaja povijesni karakter s modernim luksuzom. Promišljene renovacije prikazuju pet spavaćih soba, tri puna kupaonice, dva toaletna prostora, bujni privatni dvorište i rooftop oazu – svaki prostor završava s premium detaljima i unaprijeđen je najsuvremenijom tehnologijom.
Prostrana predsoblja s dvostrukim vratima otvara se u sunčanu dnevnu sobu, gdje otvoreni raspored besprijekorno balansira eleganciju i funkcionalnost. Na prednjem dijelu, formalni dnevni boravak – koji je ukrašen restauriranim kaminom na drva i izvorno obojenim staklenim naglasima – postavlja ton za profinjeno zabavljanje. Središnji dio za objedovanje dopunjuje dobro opremljeni toalet, dok stražnji dio otkriva kuhinju za kuhare osmišljenu za stil i performanse. Opremljena Bertazzoni aparatima, uključujući štednjak s pet plamenika, hladnjak s francuskim vratima, vinoteka, punjač posuđa i perilicu suđa, kuhinja se može pohvaliti prilagođenim namještajem, mramornim radnim pločama i prostranim otokom. Dvostruka vrata produžuju životni prostor na vanjski privatni deck i prostrano dvorište, idealno za okupljanja tijekom cijele godine.
Na katu, mirna glavna suite gleda na vrt i nudi dva duboka ormara. Kupaonica inspirirana spa-om ima mramorne obloge, dupla umivaonika, tuš kabinu s staklenim zidom i samostojeću kadu. Tri krovna prozora osvjetljavaju nivo prirodnom svjetlošću, ističući dodatne dvije spavaće sobe, punu kupaonicu i perilicu/sušilicu. Druge stepenice vode na privatni krov, okružen dodatnim prozorima i krovnim prozorom za svijetlu, prozračnu atmosferu.
Svestrani podrum, s teksturiranim pločicama i toaletom, savršen je za igraonicu, ured ili medijsku sobu. Razina vrta sadrži odvojeni apartman s dva kreveta i vlastitom perilicom - idealno kao unajmljena jedinica, gostinjski suite ili stan za svekrvu.
Smještena u ulici okruženoj drvećem u Bedford-Stuyvesantu, ova rezidencija okružena je omiljenim lokalima, uključujući Peaches HotHouse, Saraghina, Dolores i Daphne’s. Park Herbert Von King udaljen je samo nekoliko ulica, a vlakovi linija A, C i G su u blizini dok je JFK Zračna luka udaljena samo 25 minuta vožnje.
Ulica 444 Quincy nudi rijetku priliku za vlasništvo povijesne kuće koja je pomno ažurirana za moderni život, gdje je svaki detalj osmišljen kako bi unio udobnost i stil.
Built in 1899, 444 Quincy Street is a meticulously reimagined three-story, two-family brick townhouse that blends historic character with modern luxury. Thoughtful renovations showcase five bedrooms, three full baths, two powder rooms, a lush private backyard, and a rooftop oasis—each space finished with premium details and enhanced by state-of-the-art technology.
A spacious foyer with double doors opens into the sunlit parlor floor, where an open layout seamlessly balances elegance and function. At the front, the formal living room—anchored by a restored wood-burning fireplace and original stained-glass accents—sets the tone for refined entertaining. The central dining area is complemented by a well-appointed powder room, while the rear reveals a chef’s kitchen designed for both style and performance. Outfitted with Bertazzoni appliances, including a five-burner range, French Door refrigerator, wine cooler, pot filler, and dishwasher, the kitchen features custom cabinetry, marble countertops, and a generous island. Double doors extend the living space outdoors to a private deck and expansive backyard, ideal for year-round gatherings.
Upstairs, the serene primary suite overlooks the garden and offers two deep closets. The spa-inspired en-suite bath boasts marble finishes, a double vanity, a glass-enclosed shower, and a freestanding soaking tub. Three skylights fill the level with natural light, highlighting two additional bedrooms, a full bath, and a washer/dryer. A second staircase leads to the private roof, framed by additional windows and a skylight for a bright, airy feel.
The versatile cellar, with textured tile floors and a powder room, is perfect for a playroom, office, or media room. The garden level hosts a separate two-bedroom apartment with its own laundry—ideal as a rental, guest suite, or in-law residence.
Set on a tree-lined street in Bedford-Stuyvesant, this residence is surrounded by beloved neighborhood spots, including Peaches HotHouse, Saraghina, Dolores, and Daphne’s. Herbert Von King Park is just blocks away, with the A, C, and G trains nearby and JFK Airport only a 25-minute drive.
444 Quincy Street offers the rare opportunity to own a historic townhouse thoughtfully updated for modern living, where every detail has been designed to elevate both comfort and style.
This information is not verified for authenticity or accuracy and is not guaranteed and may not reflect all real estate activity in the market. ©2025 The Real Estate Board of New York, Inc., All rights reserved.







