| ID # | 912693 |
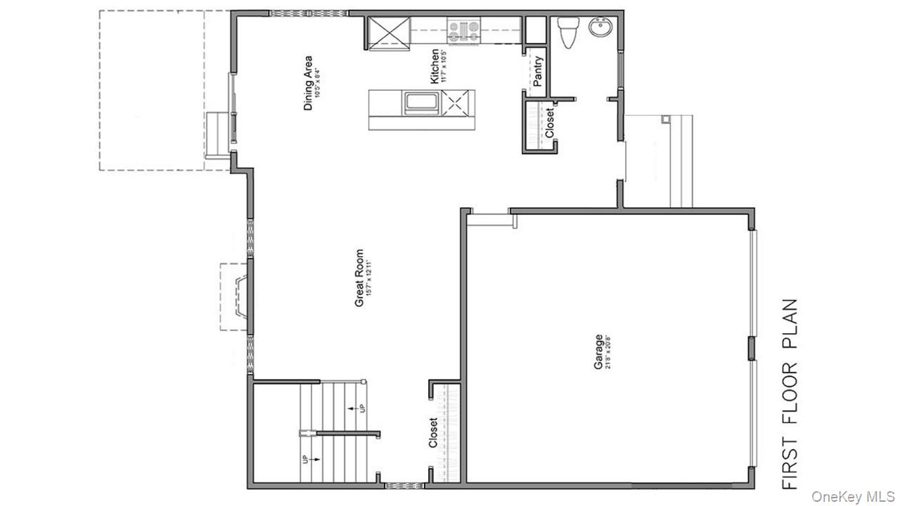
| Detalji nekretnine | 3 spavaća soba, 2 kupaonica, 1 WC, perilica posuđa, perilica rublja, garaža, klima uređaj, unutrašnjost: 1830 ft2, 170m2 (DOM): 92 days |
| Godina izgradnje | 2026 |
| Porezi (godišnje) | $12,265 |
| Vrsta grijanja | Topli zrak |
| Klima uređaj | Središnji klima uređaj |
| Vrsta garaže | Prilog |
![]() |
ZA IZGRADNJU! Dobrodošli u Clark – pažljivo dizajiranu novu građevinu koju donosi LMD Homes. Smještena u srcu šarmantnog Hyde Parka, ova kuća spaja modernu udobnost s bezvremenskim stilom i već sadrži niz poželjnih strukturnih nadogradnji, koje su već uključene u cijenu. Uđite unutra i uživajte u otvorenom osjećaju koji stvaraju stropovi visoki 9 stopa na prvom katu i obilje prirodne svjetlosti iz šest dodatnih prozora pažljivo postavljenih kroz cijelu kuću. Gurmanska kuhinja je pravi središnji dio, s dvifutnim proširenjem, kuhalom s ventilatorom i dvostrukim zidnim pećnicama – savršeno za zabavu ili svakodnevni život. Od kuhinje se proteže terasa obrađena pod pritiskom dimenzija 10'x12', koja proširuje vaš životni prostor na otvorenom. Na katu, vlasnička suite nudi prostrano tuš kabinu dimenzija 5 stopa i dupla umivaonika za dodatnu praktičnost. Stepenište od hrastovog drva dodaje toplinu i izdržljivost, dok udobna kamina stvara privlačnu središnju točku u velikoj sobi. Dodatni detalji uključuju punih 8' izlivenih betonskih podruma, dvostruku zonu centralnog grijanja i pažljivo odabrane nadogradnje koje podižu funkcionalnost i dizajn. Ograničeno vrijeme, kupci će imati priliku personalizirati ovu kuću odabirom vlastitih unutarnjih završnih obradama, čineći je jedinstvenom. Smještena u slikovitom Hyde Parku, ova kuća nudi rijetku kombinaciju udobnosti nove gradnje u slikovitom i povijesnom okruženju. Ne propustite priliku da ovaj unaprijeđeni Clark model učinite svojim!
TO BE BUILT! Welcome to the Clark – a thoughtfully designed new construction home brought to you by LMD Homes. Nestled in the heart of charming Hyde Park, this home blends modern comfort with timeless style, and already includes a number of sought-after structural upgrades, all built into the price. Step inside and enjoy the open feel created by 9-foot ceilings on the first floor and an abundance of natural light from six additional windows thoughtfully placed throughout the home. The gourmet kitchen is a true centerpiece, featuring a two-foot expansion, cooktop with vented exhaust fan, and a double wall oven—perfect for entertaining or everyday living. Just off the kitchen, a 10’x12’ pressure-treated deck extends your living space outdoors. Upstairs, the owner’s suite offers a spacious 5-foot shower and dual sinks for added convenience. The oak tread staircase adds warmth and durability, while the cozy fireplace creates a welcoming focal point in the great room. Additional highlights include a full 8’ poured concrete basement, two-zone central air conditioning, and carefully chosen enhancements that elevate both function and design. For a limited time, buyers will have the opportunity to personalize this home by selecting their own interior finishes, making it uniquely theirs. Located in scenic Hyde Park, this home offers the rare combination of new construction convenience in a picturesque and historic setting. Don’t miss the chance to make this upgraded Clark model your own! © 2025 OneKey™ MLS, LLC







