| ID # | RLS20050032 |
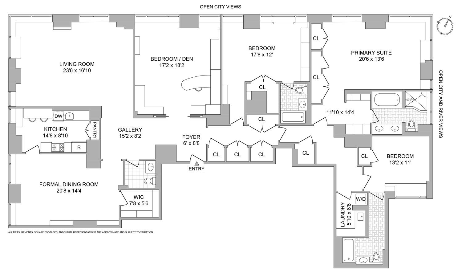
| Detalji nekretnine | The Seville 3 spavaća soba, 3 kupaonica, 1 WC, unutrašnjost: 3298 ft2, 306m2 (DOM): 46 days |
| Godina izgradnje | 2001 |
| Troškovi održavanja | $4,981 |
| Porezi (godišnje) | $67,656 |
| Metro | 5 minuta: Q, 6 |
![]() |
Elegantan, prostoran i uzvišen - gotovo 3.300 četvornih metara u kondominiju The Seville
Zaista izvanredna rezidencija čeka na 30. katu kondominija The Seville - ikonične zgrade koju je dizajnirao Robert A.M. Stern na adresi 300 East 77th Street. Ovaj prostrani dom s 3-4 spavaće sobe i 3.5 kupaonice nudi 3.298 četvornih metara po cijeni od 4.695.000 dolara - pružajući izvanrednu vrijednost od nešto više od 1.425 dolara po četvornom metru. S četiri otvorena izlaganja, neometanim pogledima i bezvremenskim završnim obradama, ovaj dom predstavlja rijetku priliku na Upper East Sideu.
Od trenutka kada uđete u predvorje nalik galeriji, opseg i elegancija su odmah očiti. S stropovima visine 10,5 stopa i velikim prozorima, dom je ispunjen prirodnom svjetlošću i prožet osjećajem veličanstvenosti.
Formalni dnevni boravak i odvojena blagovaonica okrenuti su prema zapadu, kupajući prostore za zabavu u zlatnoj svjetlosti i nudeći spektakularne poglede na zalazak sunca nad Manhattanom. Blagovaonica može lako primiti deset ili više osoba, kako za intimne večere, tako i za veće okupljanja.
Kuhinja s prozorom i prostorom za objedovanje opremljena je granitnim radnim površinama, uređajima od nehrđajućeg čelika i obilnom plastikom, sve uokvireno širokim otvorenim pogledima. Pored dnevnog prostora, bogato obložena kancelarija - trenutno služi kao medijska soba ili opcionalna četvrta spavaća soba - dodaje udobnost i svestranost.
Privatno krilo spavaće sobe sadrži tri prevelike spavaće sobe, svaka s vlastitim ormarima i kupaonicama s mramornim naglascima. Kutni glavni apartman uživa u sjajnim istočnim izlaganjima s pogledima na izlazak sunca nad East Riverom, kupaonicu nalik spa sa kadom za kupanje, odvojenim tušem i dvostrukim umivaonikom, zajedno s obilnim prostorom za odlaganje.
Dodatni istaknuti sadržaji uključuju modernu toaletnu wc, posvećenu praonicu rublja i obilno skladište kroz cijeli prostor.
Sadržaji zgrade
The Seville je kondominij s punim uslugama, koji nudi 24-satnu uslugu vratara i concierge uslugu, vrhunski fitness centar s unutarnjim bazenom, parnu sobu, saunu i sobu za masažu, kao i igraonicu, konferencijsku sobu, skladište za bicikle, središnju praonicu i privatne ormare za skladištenje. Parking garaža na licu mjesta i politika prijateljska prema ljubimcima upotpunjuju ponudu. Blizu 6 i Q linija podzemne željeznice, Central Parka i nekih od najboljih restorana, trgovina i kulturnih destinacija na Upper East Sideu, The Seville nudi eleganciju i lakoću u jednakim mjerama.
Mjesečna kapitalna procjena: 567,57 dolara do 31.10.2025.
Iskusite izvanrednu vrijednost, nezaboravnu svjetlost i pravu sofisticiranost Upper East Sidea - zakazujte svoj privatni obilazak već danas.
Elegant, Expansive, and Elevated - Nearly 3,300 Sq Ft at The Seville Condominium
A truly remarkable residence awaits on the 30th floor of The Seville Condominium - an iconic Robert A.M. Stern-designed building at 300 East 77th Street. This sprawling 3-4 bedroom, 3.5 bathroom home offers 3,298 square feet at $4,695,000 - presenting exceptional value at just over $1,425 per square foot. With four open exposures, unobstructed views, and timeless finishes throughout, this home is a rare opportunity on the Upper East Side.
From the moment you enter the gallery-style foyer, the scale and elegance are immediately apparent. With 10.5-foot ceilings and oversized windows, the home is flooded with natural light and imbued with a grand sense of openness.
The formal living room and separate dining room face west, bathing the entertaining spaces in golden light and offering breathtaking sunset views over the Manhattan skyline. The dining room easily seats ten or more, for both intimate dinners and larger gatherings.
The windowed eat-in kitchen is outfitted with granite countertops, stainless steel appliances, and generous cabinetry, all framed by sweeping open views. Adjacent to the living space, a richly paneled den - currently serving as a media room or optional fourth bedroom - adds comfort and versatility.
The private bedroom wing features three oversized bedrooms, each with custom closets and ensuite marble-accented bathrooms. The corner primary suite enjoys brilliant eastern exposures with sunrise views over the East River, a spa-like bath with soaking tub, separate shower, and double vanity, along with extensive closet space.
Additional highlights include a stylish powder room, dedicated laundry room, and abundant storage throughout.
Building Amenities
The Seville is a full-service, white-glove condominium offering 24-hour doorman and concierge services, a state-of-the-art fitness center with indoor pool, steam room, sauna, and massage room, as well as a playroom, conference room, bike storage, central laundry, and private storage lockers. An on-site parking garage and pet-friendly policy complete the offering. Close to 6 and Q subway lines, Central Park, and some of the Upper East Side's best dining, shopping, and cultural destinations, The Seville delivers elegance and ease in equal measure.
Monthly Capital Assessment: $567.57 through 10/31/2025
Experience extraordinary value, unforgettable light, and true Upper East Side sophistication - schedule your private showing today.
This information is not verified for authenticity or accuracy and is not guaranteed and may not reflect all real estate activity in the market. ©2025 The Real Estate Board of New York, Inc., All rights reserved.







