| MLS # | 916097 |
| Godina izgradnje | 1970 |
| Vrsta goriva | Električno |
| Vrsta grijanja | Topli zrak |
| Klima uređaj | Središnji klima uređaj |
| Vlak | 1.8 milja: "Huntington" |
| 2.4 milja: "Greenlawn" | |
![]() |
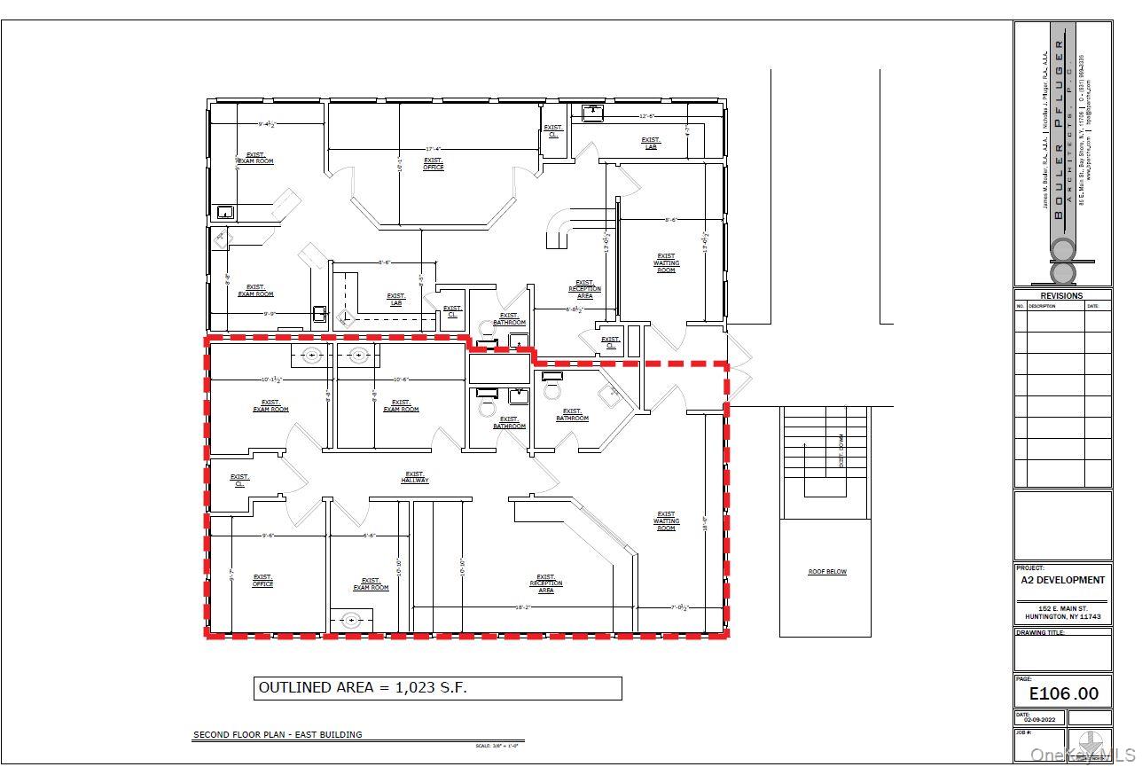
Renovirana dvokatna poslovna zgrada sa 14.000 kvadratnih stopa u srcu Huntingtona. Pogodno za uredskog ili medicinskog najmoprimca. Ured se nalazi na 2. katu s rampom koja je u skladu s ADA standardima, plus stepenice, površine 1.023 kvadratna stopa. Najam je 3.580 USD/mjesec prema modificiranom bruto najmu. Najmoprimac plaća 1,48 USD/kvadratna stopa za CAM troškove i svoj proporcionalni dio povećanja poreza. Pogledajte tlocrt za raspored i arhitektonske elevacije. 54 parkirna mjesta. Najmoprimci uključuju neurologa, stomatologa, savjetnika za mentalno zdravlje i tvrtku za elektroniku.
Renovated 2 Story Professional Building with 14,000 Square Feet in the Heart of Huntington. Suitable for Office or Medical Tenant. Suite is on 2nd Floor with ADA Compliant Ramp Plus Stairs with 1,023 Square Feet. Rent is $3,580/Month Modified Gross Lease. Tenant to Pay $1.48/SF for CAM Charges and Their Proportionate Share of the Increase in Taxes. See Floor Plan for Lay-Out and Architectural Elevations. 54 Parking Spaces. Tenants Include a Neurologist, Dentist, Mental Health Counselor and Electronics Company. © 2025 OneKey™ MLS, LLC







