| ID # | 824292 |
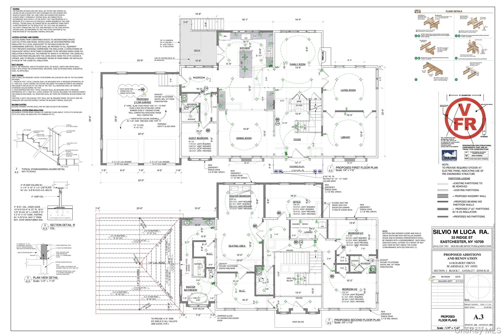
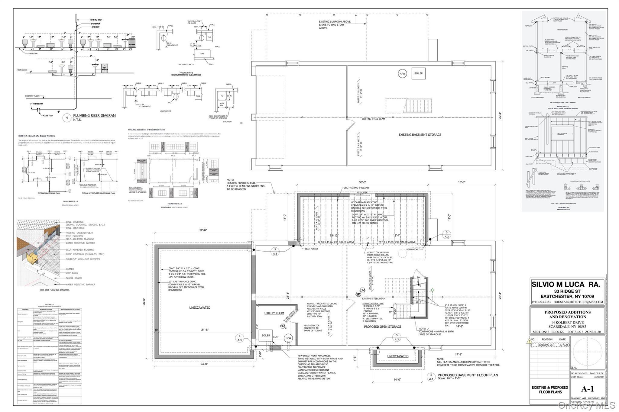
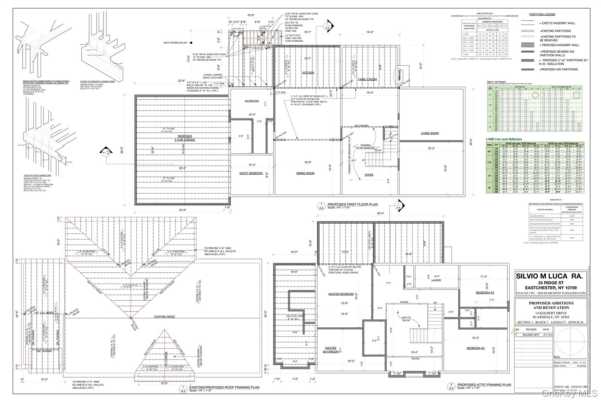
| Detalji nekretnine | 6 spavaća soba, 5 kupaonica, perilica posuđa, perilica rublja, sušilica rublja, garaža, klima uređaj, eksterijer: 0.49 jutara, unutrašnjost: 6000 ft2, 557m2 (DOM): 42 days |
| Godina izgradnje | 1965 |
| Porezi (godišnje) | $35,055 |
| Vrsta grijanja | Topli zrak |
| Klima uređaj | Središnji klima uređaj |
| Podrum | Potpuna podrumska etaža |
![]() |
Predstavljajući očaravajući dragulj novije gradnje, ova ručno izrađena prilagođena kolonijalna kuća središnjeg hodnika utjelovljuje srce luksuznog življenja smještenog na privatnoj i mirnoj ulici sa drvećem u srcu Murdock Woodsa - vrlo izolirano, ali samo kratka vožnja do središta sela Scarsdale i željezničke stanice. Metikuluzna pažnja posvećena detaljima očita je tijekom ove kuće prilagođene gradnje koja se može pohvaliti s preko 6.000 četvornih stopa prostora za život, obuhvaćajući šest prevelikih spavaćih soba, pet potpuno opremljenih kupaonica, svi en-suite, koji su apsolutno prekrasni. Plan otvorenog prostora na prvom katu pažljivo je osmišljen, s modernim konceptom i savršenim protokom za zabavu obitelji i prijatelja, najnevjerojatnija kuhinja za gurmane, ogroman središnji otok s kvartsitnim radnim površinama uključujući Wolf i Sub-Zero uređaje, Cove perilicu posuđa, vinsku hladnjak ispod radne površine, zapanjujuće prilagođene ormariće i kvartsitne radne površine, formalnu blagovaonicu i prostrani dnevni boravak koji isijava jednostavnu eleganciju s nevjerojatnim kaminom na drva koji stvara ugodne zimske večeri - savršeno mjesto za završavanje dana. Na prvom katu nalazi se savršena gostinjska suite, s en-suite potpuno opremljenom kupaonicom koja nudi privatne smještajne kapacitete, radna soba uz mudroom i trenutnu praonicu na vrlo praktičnoj lokaciji! Drugi kat je potkrijepljen luksuznom glavnom suite s najluksuznijim ugrađenim ormarom, kupaonicom koja podsjeća na spa s mramornim podovima, slobodno stojećom kadom Victoria Albert, parnom tuš kabinom i zatvorenim WC-om. Tri dodatne spavaće sobe s en-suite kupaonicama upotpunjuju drugi kat. Potpuno uređeni donji kat je raj za zabavu, s XO hladnjakom, prilagođenom vinskom podrumom, prostranom rekreacijskom sobom te kompletnim teretanom. Ova kuća opremljena je najmodernijim pametnim kućnim značajkama, uključujući generator, svjetla upravljana Lutron sustavom, IPA drvenu terasu, Marvin prozore, i opremljena je Sonos zvukom u cijelom prostoru. Pažljivo dizajnirana za luksuzno življenje, 14 Kolbert predstavlja rijetku priliku za vlasništvo nad izvanrednom nekretninom u jednom od najpoželjnijih susjedstava Scarsdalea. Blizu Weinberg Nature Center, javnog bazena Scarsdale, stajališta Boulder Brook za jahanje, tenisa i golfa, sve unutar kratke vožnje od 32 minute do Grand Central terminala - ne propustite ovu nevjerojatnu priliku nazvati ovo domom!
Presenting a captivating gem of newer construction, this handcrafted Custom Center Hall Colonial epitomizes the heart of luxury living discreetly situated on a private and tranquil tree lined street in the heart of Murdock Woods - very secluded yet only a short drive to downtown Scarsdale Village and train. Meticulous attention to detail is evident throughout this custom-built home boasting over 6,000 square feet of living space encompassing six oversized bedrooms, five full bathrooms, all ensuite, are absolutely exquisite. The first-floor open floor plan is meticulously designed featuring a modern concept and has the perfect flow for entertaining family and friends, the most incredible gourmet chef's kitchen , enormous center island with quartzite counter tops including Wolf and Sub-Zero appliances, Cove dishwasher, an under counter wine refrigerator, stunning custom cabinets and quartzite countertops, a formal dining room, and an expansive living room that exudes simple elegance with a stunning wood burning fireplace that make for cozy winter evenings - the perfect place to end your day. There is a fabulous first-floor guest suite, with an en-suite full bath that offers private accommodations, a home office complemented by a thoughtfully designed mudroom and laundry room very conveniently located! The second level is anchored by a luxurious primary suite with the most luxurious custom built-in closet, a spa-like bath featuring marble floors, a free-standing Victoria Albert soaking tub, steam shower, and enclosed water closet. three additional bedrooms with en-suite bathrooms complete the second floor. The fully finished lower level is an entertainer’s paradise, featuring XO refrigeration, a custom wine cellar, an expansive recreation room as well as a full gym area. This home is equipped with cutting-edge smart home features, including a stand-by generator, Lutron controlled lighting, an IPA wood deck, Marvin windows and is wired for Sonos sound throughout. Thoughtfully designed for luxurious living, 14 Kolbert represents a rare opportunity to own an exceptional property in one of Scarsdale's most sought-after neighborhoods. Close to the Weinberg Nature Center, Scarsdale public pool complex, Boulder Brook riding stables, tennis and golf all within a short 32 minute commute to Grand Central terminal- don't miss this incredible opportunity to call this home! © 2025 OneKey™ MLS, LLC







