| MLS # | 916716 |
| Porezi (godišnje) | $62,030 |
| Vrsta goriva | Prirodni plin |
| Klima uređaj | Središnji klima uređaj |
| Vlak | 1 milja: "Farmingdale" |
| 2.7 milja: "Bethpage" | |
![]() |
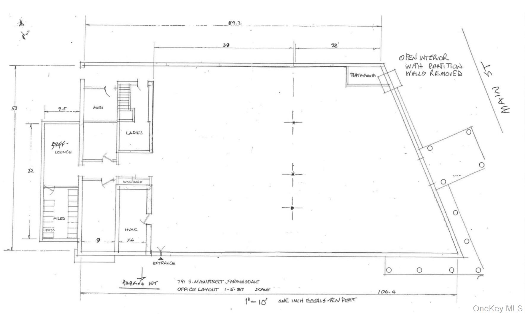
Pozivamo sve investitore, developere i krajnje korisnike!!! Razvojno mjesto od 30,000 četvornih stopa s zgradom od 5,500+ četvornih stopa i velikim parkiralištem te vanjskim skladištem na prodaju na Glavnoj ulici!!! Imovina ima izloženost na Glavnoj ulici i ulici Staples!!! Zgrada nudi otvorenu opciju tlocrta gdje se mogu ukloniti nenosivi zidovi kako bi se stvorilo ogromno otvoreno prostor od 5,000+ četvornih stopa, čineći ovo savršenom prilikom za fizioterapeute, vrtiće, klinike, izvođače radova, kiropraktičare, CrossFit, teretane, +++!!! Ova nekretnina je ranije bila dom uspješnom restoranu!!! Imovina nudi odličnu izloženost, izvrsno oglašavanje, veliki zajednički ured, prijamnu površinu, puno prirodnog svjetla, više ureda, čekaonicu s WC-om, privatno parkiralište, kuhinju, visoke stropove od 14’, 3 velika WC-a, potpuno novu LED rasvjetu, klimatizaciju, +++!!! Imovina se nalazi u srcu Farmingdalea na Glavnoj ulici, samo nekoliko ulica od ceste 109 i ceste 110!!! Imovina nudi jednostavan pristup južnom dijelu autoceste Southern State Parkway i zračnoj luci Farmingdale Republic!!! Susjedi uključuju Starbucks, Marriott hoteli, Walmart, The Home Depot, javno skladište, Extra Space Storage, Dunkin’, Wendy’s, Applebee’s Bar & Grill, Regal Cinemas, UA Cinemas, Panera Bread, Ralph’s Italian Ices, Chili’s, Chipotle, Exxon, +++!!! Imovina je zonirana za vanjsko skladištenje registriranih i neregistriranih vozila!!! Ova nekretnina nudi GOLEMU potencijalnu dobit!!! Ovo bi moglo biti vaše sljedeće razvojno mjesto ili sljedeći dom za vašu tvrtku!!! Ništa od ovoga ne treba se smatrati investicijskim savjetom. Uvijek obavite vlastitu dužnu pažnju prije donošenja bilo kakvih odluka.
Prihod:
Zgrada od 5,589 četvornih stopa + dvorište: $240,000 godišnje NNN (dostupno)
Bruto prihod: $240,000 godišnje NNN
Troškovi:
Porezi: $62,030.68 godišnje
Calling All Investors, Developers & End-Users!!! 30,000 Sqft. Development Site With 5,500+ Sqft. Building & Huge Parking Lot & Outdoor Storage For Sale On Main Street!!! The Property Offers Frontage On Both Main Street & Staples Street!!! The building Offers An Open Layout Option Where Non-Loadbearing Walls Can Be Taken Out To Create A Huge 5,000+ Sqft. Open Space Making This The Perfect Opportunity For Physical Therapists, Daycares, Clinics, Contractors, Chiropractors, CrossFit, Gyms, +++!!! The Property Was Previously Home To A Successful Restaurant!!! The Property Features Great Exposure, Excellent Signage, A Large Bullpen, Reception Area, Tons Of Natural Light, Multiple Offices, Waiting Room With Restrooms, Private Parking Lot, Kitchen, High 14’ Ceilings, 3 Large Bathrooms, All New LED Lighting, CAC, +++!!! The Property Is Located In The Heart Of Farmingdale On Main Street Just Blocks From Route 109 & Route 110!!! The Property Offers Easy Access To The Southern State Pkwy. & Farmingdale Republic Airport!!! Neighbors Include Starbucks, Marriott Hotels, Walmart, The Home Depot, Public Storage, Extra Space Storage, Dunkin’, Wendy’s, Applebee’s Bar & Grill, Regal Cinemas, UA Cinemas, Panera Bread, Ralph’s Italian Ices, Chili’s, Chipotle, Exxon, +++!!! The Property Is Zoned For Outdoor Storage Of Both Registered & Unregistered Vehicles!!! This Property Offers HUGE Upside Potential!!! This Could Be Your Next Development Site Or The Next Home For Your Business!!! None Of This Is To Be Considered Investment Advice. Always Do Your Own Due Diligence Prior To Making Any Decisions.
Income:
5,589 Sqft. Building + Yard: $240,000 Ann. NNN (Available)
Gross Income: $240,000 Ann. NNN
Expenses:
Taxes: $62,030.68 Ann. © 2025 OneKey™ MLS, LLC







