| MLS # | 920661 |
| Detalji nekretnine | 5 spavaća soba, 3 kupaonica, perilica posuđa, perilica rublja, garaža, klima uređaj, eksterijer: 0.4 jutara, unutrašnjost: 2700 ft2, 251m2 (DOM): 33 days |
| Godina izgradnje | 1970 |
| Porezi (godišnje) | $19,085 |
| Vrsta goriva | Prirodni plin |
| Vrsta grijanja | Topli zrak |
| Klima uređaj | Središnji klima uređaj |
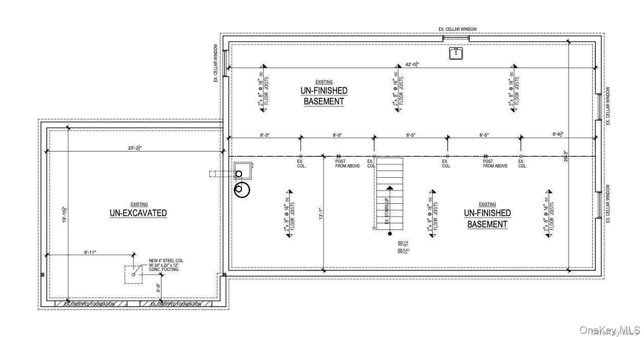
| Podrum | Potpuna podrumska etaža |
| Vrsta garaže | Prilog |
| Vlak | 1.2 milja: "Stony Brook" |
| 3.6 milja: "Port Jefferson" | |
![]() |
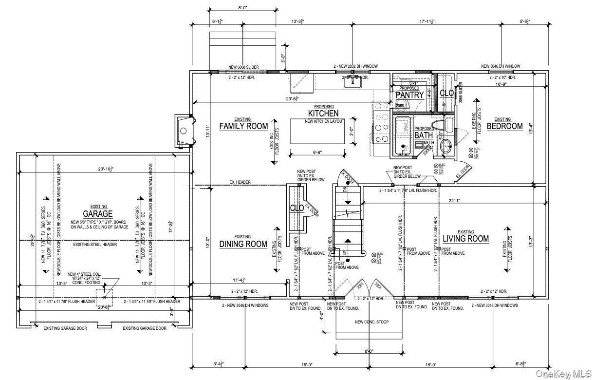
Nedavno renovirana i proširena kolonijalna kuća bit će dovršena baš na vrijeme za blagdane. Visokokvalitetni dizajnerski završni materijali, pet spavaćih soba, tri kupaonice na parceli od 0.54 akra, smještenoj na slijepoj ulici u školskom okrugu Three Village. Garaža za 2 automobila, 2700 četvornih stopa. Prvi kat uključuje blagovaonicu, kuhinju s prostorom za objedovanje, dnevni boravak, radnu sobu, spavaću sobu i punu kupaonicu. Ogromna glavna suite s dva walk-in ormara i luksuznom kupaonicom. 3 dodatne spavaće sobe, prostorija za pranje rublja i puna kupaonica na drugom katu. Potpuno neuređena podrum. Pogledajte planove za detalje. Drvene podne obloge i uvučeno osvjetljenje kroz cijelu kuću. Kuhinja se sastoji od bijelih Shaker kuhinjskih elemenata, kvarcnog radnog stola, aparata od nehrđajućeg čelika, centralnog otoka, walk-in smočnice. Završetak 15. studenog.
Newly Renovated and expanded Colonial will be completed just in time for the holidays. Designer high end finishes, Five bedrooms, Three full bathrooms on .54 acres located on cut-de-sac in Three Village School District. 2 Car garage, 2700 sq ft. First floor includes Dining room, Eat in kitchen, Living Room, Den, Bedroom and full bathroom. Huge primary suite with two walk in closets and luxury bathroom. 3 additional bedrooms, Laundry room and full bath on second level. Full unfinished basement. See plans for details. Hardwood floors & Recessed lighting throughout. Kitchen features White Shaker Cabinets, Quartz Countertops, stainless steel appliances, Center Island, Walk in Pantry. Completion November 15th. © 2025 OneKey™ MLS, LLC







