| ID # | RLS20052741 |
| Detalji nekretnine | 2 spavaća soba, 1 kupaonica, perilica posuđa, garaža, unutrašnjost: 952 ft2, 88m2 (DOM): 37 days |
| Godina izgradnje | 1965 |
| Autobus | 0 minuta: QM12 |
| 2 minuta: Q23, Q60, QM18, QM4 | |
| 3 minuta: QM11 | |
| 5 minuta: Q64 | |
| Metro | 5 minuta: E, F, M, R |
| Vlak | 0.3 milja: "Forest Hills" |
| 1.3 milja: "Kew Gardens" | |
![]() |
Otvoreni dan samo po dogovoru. Za hitnu pažnju i privatni obilazak, molimo kontaktirajte direktno agenta za nekretnine.
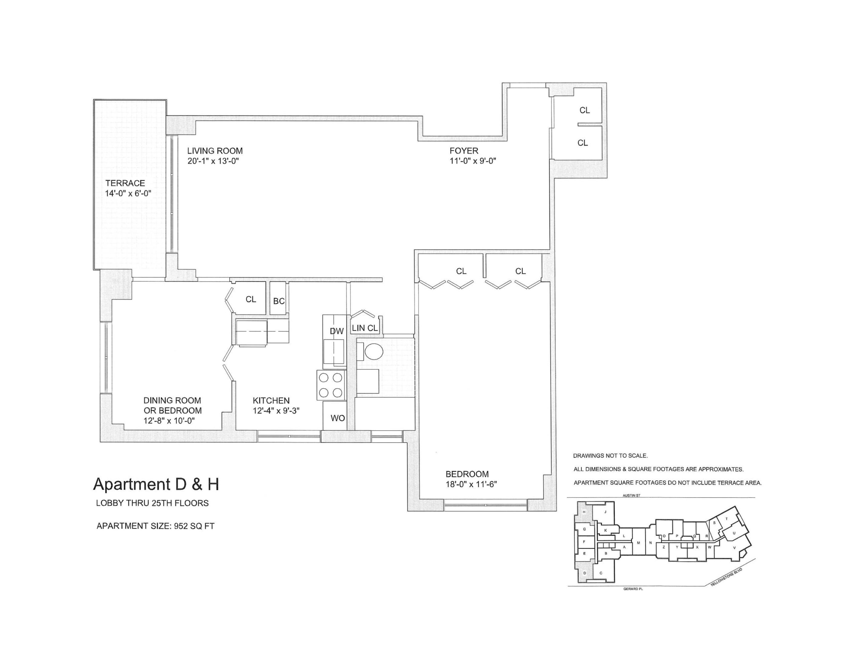
Dođite vidjeti ovaj prostrani pravi Jr-4 dom s privatnim vanjskim prostorom u Gerard Towers. S dimenzijama od 12’8” x 10’0”, formalna blagovaonica pogodna je za dječju sobu, gostinsku spavaću sobu ili ured. Sa otprilike 952 kvadratna metra, ovaj prostrani dom ima velik ulazni hol, veliku kuhinju s prozorima i kupaonicu s prozorom. Cijeli stan je nedavno oslikan. Ponesite svoj prijenosnik i kavu na privatnu terasu za mirno uživanje.
Gerard Towers je vrhunska, uslužna zgrada visoke gradnje, smještena u centru južnog dijela Queens Boulevarda. Nedavno uređeni hol je prekrasno opremljen, s toplim zemljanim tonovima. Sadržaji u zgradi uključuju 24-satnu recepciju, centralnu klima uređaj, sezonski grijani bazen, fitness centar, dječju igraonicu, uređeni dvorišni prostor, veliku centralnu praonicu, sobe za bicikle i odlaganje, te neposredni valet parking dostupan iz zgrade. Mjesečni najam uključuje centralnu A/C i grijanje, plin za kuhanje i osnovni kabelski paket. Električni troškovi su odgovornost stanara. Jedinicu je moguće iznajmljivati praznu ili djelomično namještenu.
Uživajte u najboljem od oba svijeta u povijesnoj stambenoj zajednici Forest Hills... koja nudi usluge, sadržaje i pogodnosti gradskog života! Ekspresna E/F podzemna željeznica do Manhattana udaljena je nekoliko minuta. Lako dostupan višestruki autobusni prijevoz - uključujući ekspresne autobuse do Manhattana - i obližnja postaja Long Island Rail Road. Dom West Side Tennis Cluba, prisustvujte zabavnom, sezonskom koncertu. Trader Joe’s je odmah preko ulice! Posjetite lokalnu zelenu tržnicu nedjeljom. Austin Street i okolna područja nude odlične restorane i specijalizirane trgovine, butike i maloprodajne prodavaonice, ukusne pekare, kino i još više!
Jednostavan proces najma. Nema dugih prijava odbora. Gerard Towers je zgrada koja dopušta mačke.
Open House by Appointment Only. For immediate attention and a private viewing, please contact the listing agent directly.
Come see this generously-sized true Jr-4 home with private outdoor space in Gerard Towers. With dimensions of 12’8” by 10’0”, the formal dining room is suitable for a nursery, guest bedroom or home office. At approximately 952 sq. ft., this spacious home has an oversized entry foyer, large, windowed kitchen and windowed bathroom. The entire apartment has been freshly painted. Bring your laptop and coffee out onto the private terrace for quiet enjoyment.
Gerard Towers is a premier, full-service, high-rise building, centrally located on the south side of Queens Boulevard. The newly installed lobby is beautifully appointed, with warm earth tones. Amenities in the building include 24-hour doorman, central air, seasonal heated pool, fitness center, children’s playroom, landscaped courtyard, large central laundry room, bike and storage rooms, and immediate valet parking accessible from the building. Monthly rent includes central A/C and heat, cooking gas and a basic cable package. Electric is the tenant’s responsibility. The unit can be leased vacant or partially furnished.
Enjoy the best of both worlds in the historic residential community of Forest Hills . . . offering the services, amenities and conveniences of city living! Express E/F subway service to Manhattan is minutes away. Easy access to multiple bus lines - including express buses to Manhattan - and the nearby Long Island Rail Road station. Home of the West Side Tennis Club, attend a fun, seasonal concert. Trader Joe’s is just across the street! Visit the local Green Market on Sundays. Austin Street and the surrounding area offer great restaurants and specialty shops, boutiques and retail stores, delectable bakeries, movie theatres, and more!
Easy lease process. No lengthy board application. Gerard Towers is a cat friendly building.
This information is not verified for authenticity or accuracy and is not guaranteed and may not reflect all real estate activity in the market. ©2025 The Real Estate Board of New York, Inc., All rights reserved.







