| ID # | RLS20053241 |
| Detalji nekretnine | 4 spavaća soba, 2 kupaonica, 1 WC, perilica rublja, sušilica rublja (DOM): 29 days |
| Godina izgradnje | 1880 |
| Troškovi održavanja | $5,573 |
| Metro | 4 minuta: C, E |
| 5 minuta: R, W, 1 | |
| 6 minuta: A, 6, B, D, F, M | |
| 8 minuta: N, Q | |
| 9 minuta: J, Z | |
![]() |
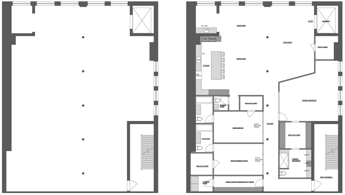
393 West Broadway, Unit 4WB
Dobrodošli u ovaj iznimni SoHo kutni loft, pravu rijetkost koja kombinira volumen, svjetlost i karakter na jednoj od najtraženijih adresa u centru grada.
Obasjan prirodnom svjetlošću kroz devet prostranih prozora okrenutih prema zapadu i sjeveru, prostor isijava toplinu i autentičnost, ističući izvorni arhitektonski šarm lofta. Provedba prostora nudi pravu praznu platnu, s potencijalom za stvaranje do osam različitih soba, prostora koji se može prilagoditi vašoj viziji, bilo da zamišljate prostrani otvoreni loft, kolekciju privatnih utočišta ili skladnu kombinaciju prostora za život i opuštanje.
Privatni pristup liftom otvara se izravno u rezidenciju, vodeći do visokih stropova, potpuno opremljene praonice i rafiniranih industrijskih detalja koji definiraju bezvremensku privlačnost SoHa. Zgrada je prijateljska prema kućnim ljubimcima, dočekujući vaše četveronožne prijatelje u ovom kreativnom utočištu.
Savršeno smješten u srcu SoHa, 393 West Broadway nalazi se samo nekoliko trenutaka od svjetski poznatih butika, restoranskih odredišta i galerija umjetnosti, s lakim pristupom brojnim linijama podzemne željeznice.
Ovo je više od doma; to je platno za samoizraz, nudeći priliku za dizajn stvarno prilagođene rezidencije u jednom od najikoničnijih četvrti New Yorka.
393 West Broadway, Unit 4WB
Welcome to this exceptional SoHo corner loft, a true rarity that combines volume, light, and character in one of downtown's most coveted addresses.
Bathed in natural light from nine expansive windows facing west and north, the space exudes warmth and authenticity, highlighting the loft's original architectural charm. The layout offers a true blank canvas, with the potential to create up to eight distinct rooms, a space that can be tailored to your vision, whether you imagine an expansive open loft, a collection of private retreats, or a harmonious blend of living and relaxing areas.
Private elevator access opens directly into the residence, leading to soaring ceilings, a full laundry room, and refined industrial details that define SoHo's timeless appeal. The building is pet-friendly, welcoming your four-legged companions into this creative haven.
Perfectly situated in the heart of SoHo, 393 West Broadway places you just moments from world-class boutiques, dining destinations, and art galleries, with effortless access to multiple subway lines.
This is more than a home; it's a canvas for self-expression, offering the opportunity to design a truly bespoke residence in one of New York's most iconic neighborhoods.
This information is not verified for authenticity or accuracy and is not guaranteed and may not reflect all real estate activity in the market. ©2025 The Real Estate Board of New York, Inc., All rights reserved.







