| ID # | RLS20053926 |
| Detalji nekretnine | 1 spavaća soba, 1 kupaonica, perilica posuđa (DOM): 28 days |
| Godina izgradnje | 1977 |
| Metro | 7 minuta: N, W, R, F, Q, 4, 5, 6 |
| 10 minuta: E, M | |
![]() |
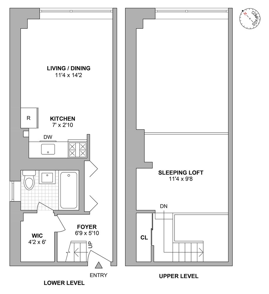
Uđite u ovaj jedinstveni dvokatni stan i budite dočekani šarmantnim predsobljem koje se otvara u zadivljujući dnevni boravak s visokim stropovima od 15 stopa i velikim prozorima industrijskog stila, obasjavajući prostor prirodnom svjetlošću.
Otvorena kuhinja je pažljivo dizajnirana s aparatima od nehrđajućeg čelika — uključujući plinski štednjak, mikrovalnu pećnicu i perilicu posuđa — te ormarićima koji zadovoljavaju sve vaše kulinarske potrebe.
Na katu, prostrana spavaća galerija može se pohvaliti visinom stropa od gotovo 7 stopa i 5 inča, udobno smještajući krevet kraljice s prostorom za dodatne namještaje. Ovaj povišeni kutak također sadrži vlastiti ormar i ugrađenu rasvjetu za dodatnu praktičnost.
Kupaonica s prozorom uključuje veliku kupku i tuš, obloženu klasičnom bijelom pločicom za čist i bezvremenski izgled.
Tijekom cijelog doma pronaći ćete prilagođene police, walk-in ormar na glavnom katu, i dobro veličinu ormara u području spavaće sobe.
Smješten u povijesnoj zgradi Beekman Condominium, izvorno izgrađenoj 1977. godine kao trgovačka praonica, a pretvorenoj u stambenu upotrebu 1987. godine, zgrada nudi usluge punog opsega uključujući recepciju otvorenu 24 sata, dva moderna lifta, kućnog upravitelja, svijetlu praonicu na 6. katu (bez podruma) i prihvaća kućne ljubimce.
Idealan je smješten nekoliko trenutaka od vrhunskog shoppinga u Bloomingdale’s, svjetske kuhinje i glavnih metro linija (4/5/6/F/N/R/Q/W), ovaj stan nudi beznaputnač pristup Midtownu, Downtownu i zračnim lukama preko obližnjeg Queensboro mosta.
Žao nam je, nema kućnih ljubimaca.
Sljedeće naknade su due uz ovaj stan:
- $20 Naknada za prijavu po podnosiocu
- Najamnina za 1. mjesec i 1 mjesec sigurnosnog depozita due prilikom potpisivanja
Naknade za condo:
- $250 Nepovratna dodatna naknada za obradu za svaku prijavu s više od jednog (1) su-podnosioca due prilikom predaje
- $500 Nepovratna godišnja naknada za najam due prilikom predaje (obavezno)
- $575 Nepovratna naknada za obradu prijave due prilikom predaje (obavezno)
- $100 Naknada za ponovnu dostavu dokumenata due prilikom predaje (ukoliko je primjenjivo)
- $250 Depozit za useljenje due prilikom predaje (povratno)
- $120 Naknada za inicijaciju prijave
- $65 Naknada za digitalnu predaju
- 5% od ukupnog prilikom predaje (isključujući naknade za digitalnu predaju i inicijaciju)
Step into this unique two-level residence and be welcomed by a charming foyer that opens into a stunning living area with soaring 15-foot ceilings and oversized industrial-style windows, bathing the space in natural light.
The open-concept kitchen is thoughtfully designed with stainless steel appliances—including a gas stove, microwave, and dishwasher—and cabinetry to satisfy all your culinary needs.
Upstairs, the spacious sleeping loft boasts a ceiling height of nearly 7 feet 5 inches, comfortably fitting a queen-sized bed with room for additional furnishings. This lofted retreat also features its own closet and built-in lighting for added convenience.
The windowed bathroom includes a full soaking tub and shower, wrapped in classic white tile for a clean and timeless look.
Throughout the home, you’ll find custom shelving, walk-in closet on the main floor, and a good sized closet in the bedroom area.
Located in the historic Beekman Condominium, originally built in 1977 as a commercial laundry facility and converted to residential use in 1987, the building offers full-service amenities including a 24-hour attended lobby, two modern elevator, live-in superintendent, a sunlit laundry room on the 6th floor (no basement) , and is pet-friendly.
Ideally located moments from premier shopping at Bloomingdale’s, world-class dining, and major subway lines (4/5/6/F/N/R/Q/W), this residence offers effortless access to Midtown, Downtown, and airports via the nearby Queensboro Bridge.
Sorry no pets
The Following Fees are Due with this Apartment:
- $20 Application Fee Per Applicant
- 1st Month Rent and 1 Month Security deposit due at signing
Condo Fees:
- $250 Non-refundable Additional Processing Fee for any application with more than one (1) co-applicant due upon submission
- $500 Non-refundable Annual Lease Fee due upon submission (required)
- $575 Non-refundable Application Processing Fee due upon submission (required)
- $100 Document Re-Submission Fee due upon submission (if applicable)
- $250 Move-in Deposit due upon submission (refundable)
- $120 Application Initiation Fee
- $65 Digital Submission Fee
- 5% of Total upon submission (excluding Digital Submission & Initiation Fees)
This information is not verified for authenticity or accuracy and is not guaranteed and may not reflect all real estate activity in the market. ©2025 The Real Estate Board of New York, Inc., All rights reserved.






