| ID # | 929669 |
| Detalji nekretnine | eksterijer: 1.07 jutara (DOM): 46 days |
| Porezi (godišnje) | $1,628 |
![]() |
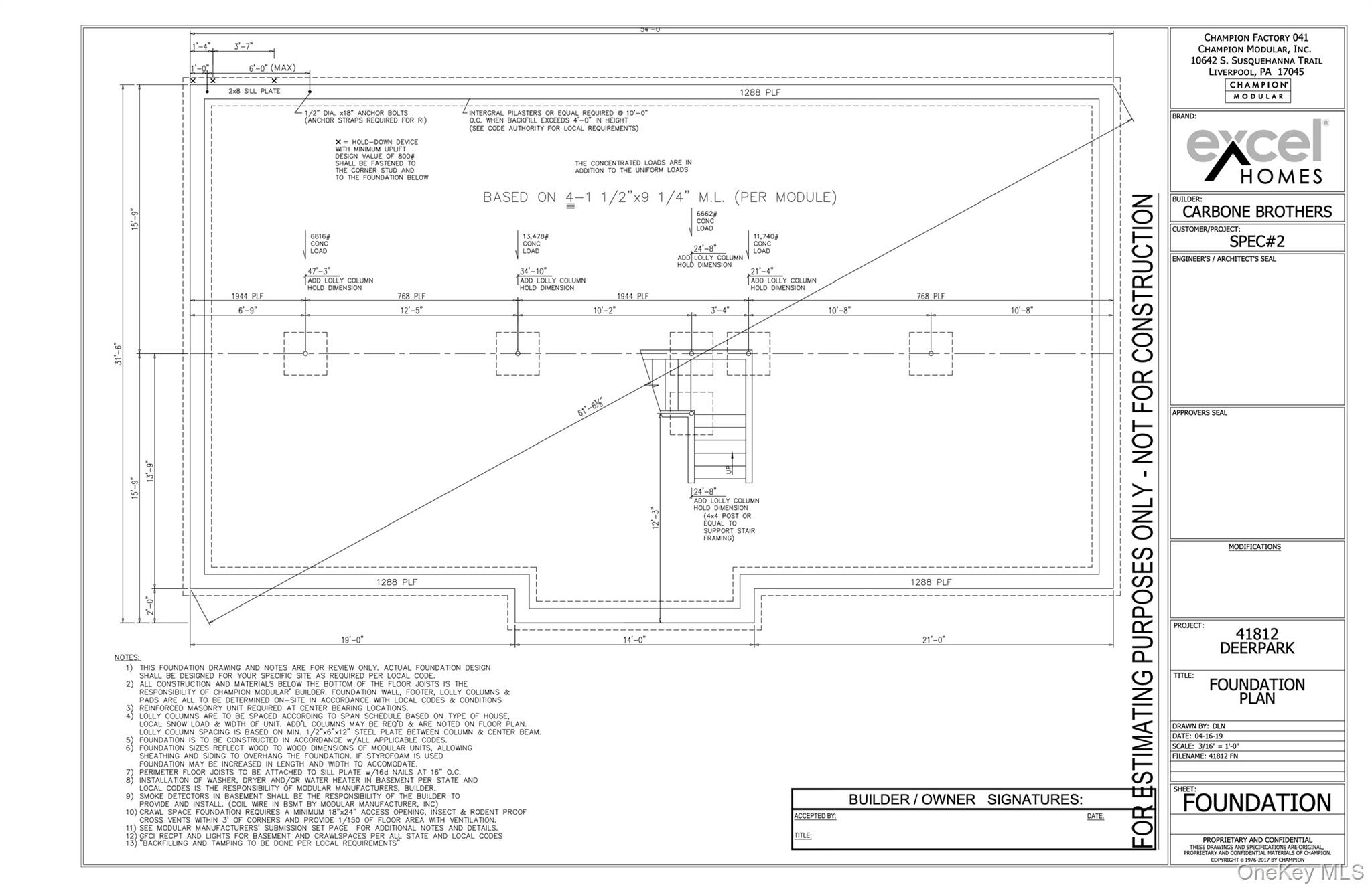
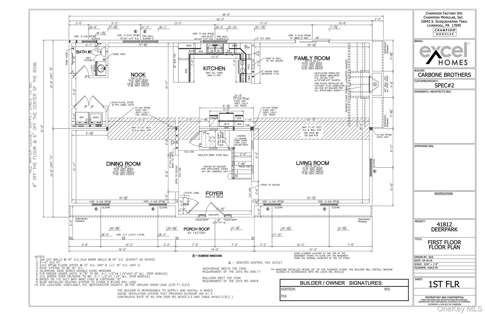
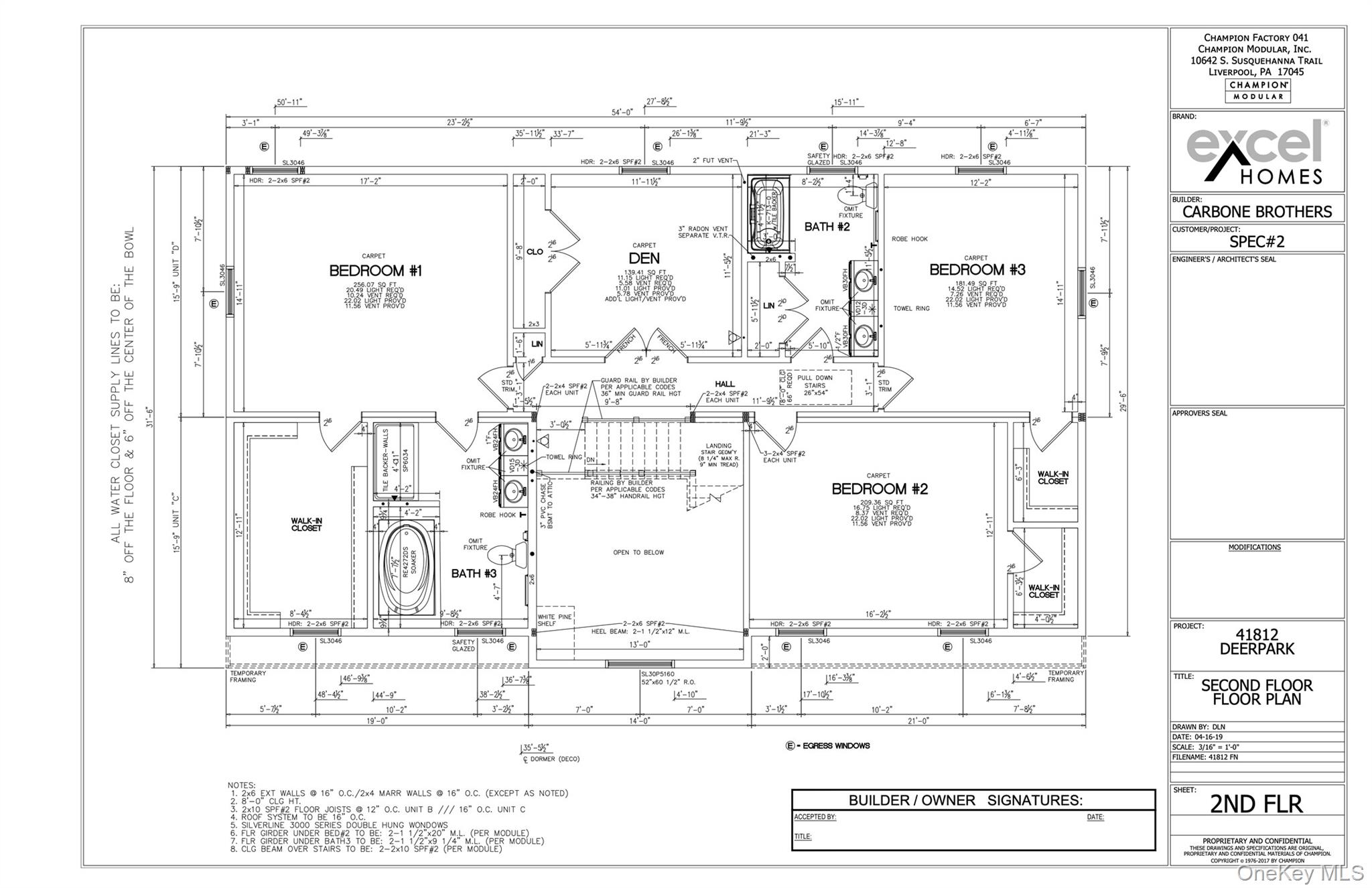
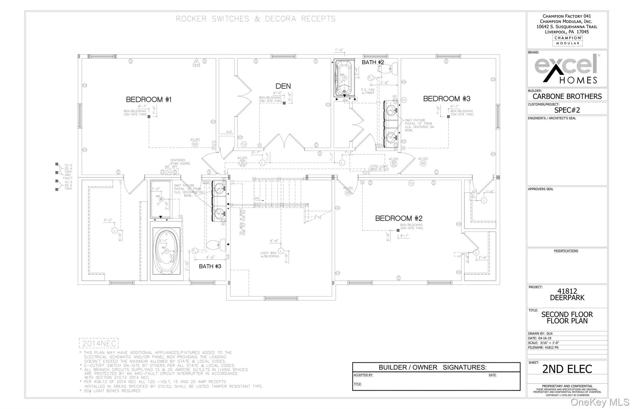
Građevinsko zemljište s pravom na jezero sada je dostupno u Cortlandt Manoru, uključujući susjednu parcelu s osiguranim pristupom Pine Lakeu. Ova prazna svojina dolazi s prethodnim odobravanjem Odjela za zdravstvo, potvrđenim inženjeringom i kompletnom arhitektonskom dokumentacijom za modularnu kuću "Deer Park" površine 3,242 kvadratna stope, nudeći rijetku priliku za ključ u ruke za graditelje, investitore ili krajnje korisnike. Komunalne usluge uključuju javnu vodu i privatni septički sustav, a parcela se nalazi u poželjnom stambenom okrugu. S odobrenjima i planovima na mjestu, ova parcela je potpuno pripremljena za trenutni razvoj, a trenutni tržišni uvjeti sugeriraju vrijednost preprodaje kuće od otprilike 975,000 dolara.
Build-ready residential lot with lake rights now available in Cortlandt Manor, including an adjacent parcel with deeded access to Pine Lake. This vacant property comes with prior Board of Health approval, verified engineering, and full architectural documentation for a 3,242 square foot Champion “Deer Park” modular home, offering a rare turnkey opportunity for builders, developers, or end-users. Utilities include public water and private septic, and the lot is situated in a desirable residential district. With approvals and plans in place, this parcel is fully prepared for immediate development, and current market conditions suggest an end-home resale value of approximately $975,000. © 2025 OneKey™ MLS, LLC







