| ID # | 944019 |
| Detalji nekretnine | 2 spavaća soba, 1 kupaonica, garaža, klima uređaj, eksterijer: 0.13 jutara, unutrašnjost: 1174 ft2, 109m2 (DOM): 92 days |
| Godina izgradnje | 1919 |
| Porezi (godišnje) | $12,060 |
| Klima uređaj | Zidna klima |
| Podrum | Nema |
![]() |
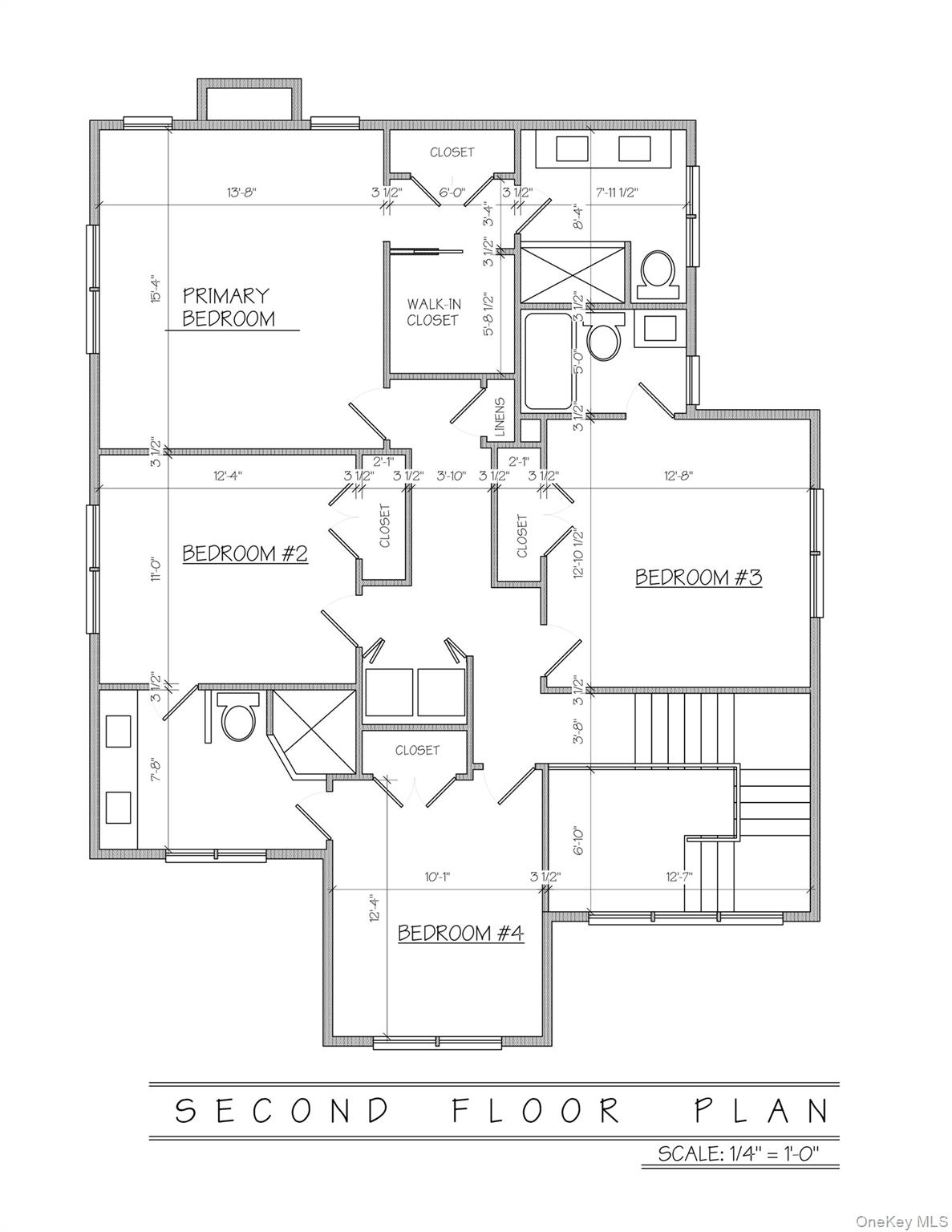
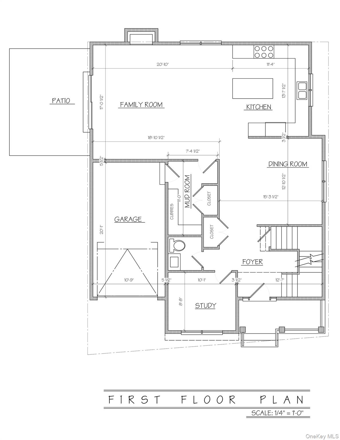
Ova parcela od .13 hektara na uglu već ima planove za izgradnju prekrasne kuće s 4 spavaće sobe i 3 1/2 kupaonice s garažom za jedan automobil, nešto manje od 3,000 četvornih stopa. Novi planovi za kuću spremni su za vašu recenziju ili možete planirati vlastite. Samo pitajte. Udaljenost do stanica Metro North u Ryeu i Harrisonu je kratka. Pripremite svoje plažne stolice i krenite prema Oakland plaži u Rye Town Parku, koja je na samo nekoliko minuta hoda. Trgovine, kupovina, život na čamcu, škola i još mnogo toga, samo nekoliko koraka od ove fantastične lokacije. Dođite iskusiti susjedstvo i kupite ovu parcelu s planovima koji su već spremni za podnošenje. Cijena je samo za nekretninu.
This .13 acre corner lot already has plans build a gorgeous 4 bedroom 3 1/2 bath home with one car garage just under 3,000 square feet. New home plans ready for your review or plan your own. Just ask. Short distance to both Rye and Harrison Metro North stations. Get your beach chairs ready to head on over to Oakland Beach at Rye Town Park which is a short stroll away. Shops, shopping, boat life, school and more just steps away from this fantastic location. Come experience the neighborhood and buy this lot with plans all ready for submittal. Price is for the property only
This information is not verified for authenticity or accuracy and is not guaranteed and may not reflect all real estate activity in the market. Listing courtesy of William Raveis-New York LLC © 2026







