| ID # | 966535 |
| Detalji nekretnine | 5 spavaća soba, 5 kupaonica, 1 WC, perilica rublja, sušilica rublja, garaža, klima uređaj, unutrašnjost: 5685 ft2, 528m2 (DOM): 9 days |
| Godina izgradnje | 2026 |
| Porezi (godišnje) | $3,470 |
| Klima uređaj | Središnji klima uređaj |
| Podrum | Potpuna podrumska etaža |
| Vrsta garaže | Prilog |
![]() |
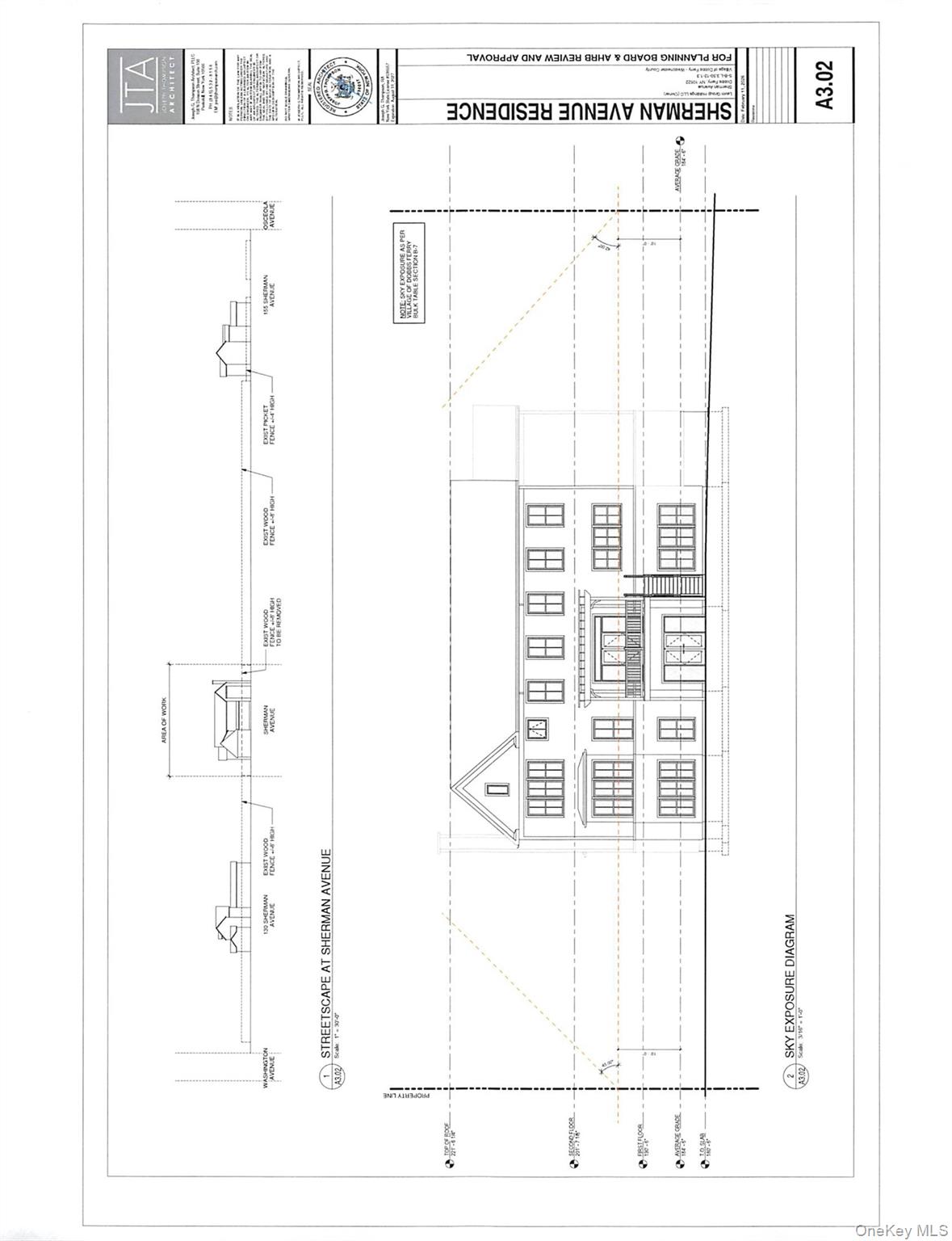
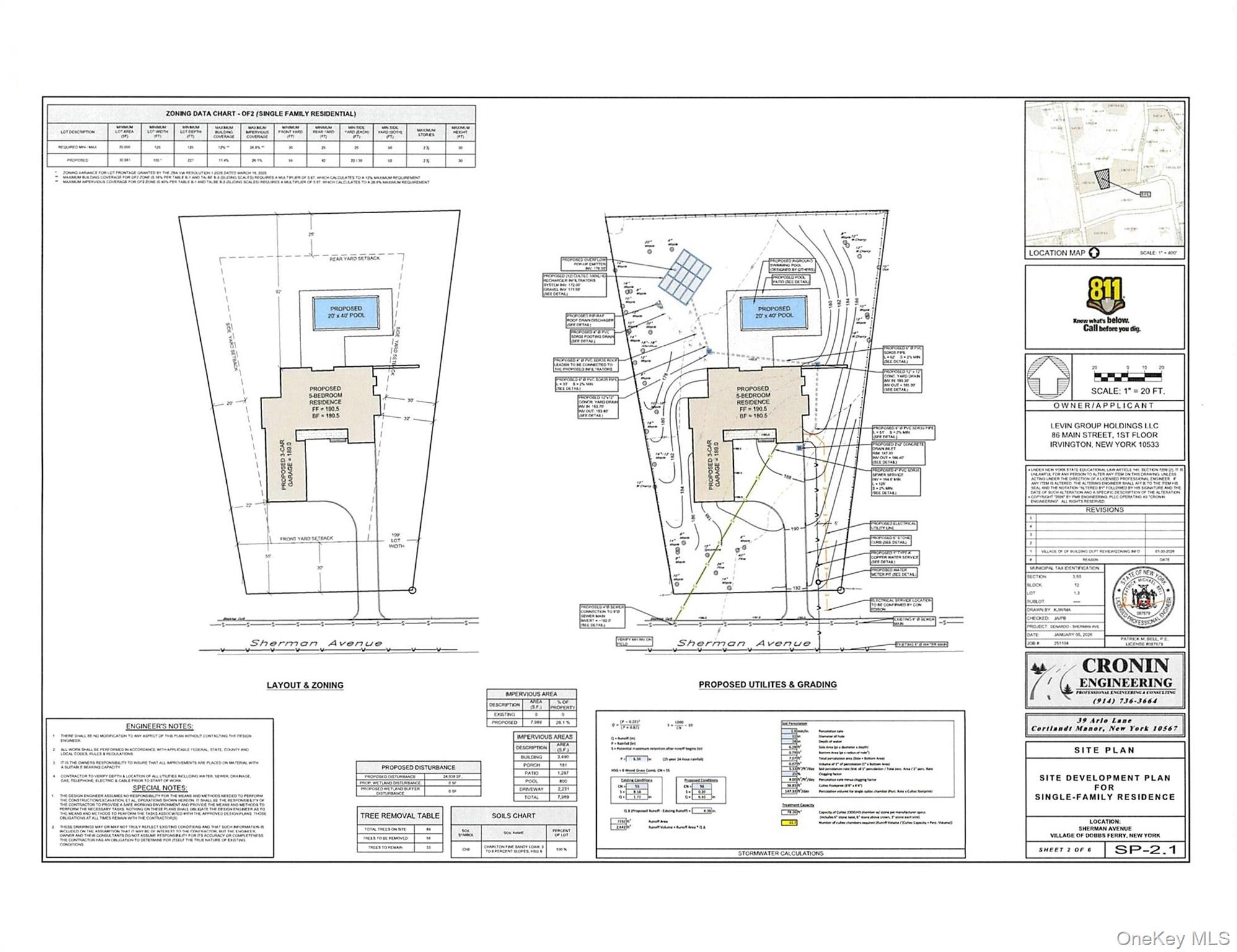
Luksuzna nova gradnja u prestižnom Ardsley Parku! Smještena u šarmantnom selu Dobbs Ferry, ova prvoklasna kuća nudi gotovo 8.000 četvornih stopa lijepo dizajniranog životnog prostora, uključujući dovršeni donji nivo. Ova iznimna, prilagođena kuća ima pet prostranih spavaćih soba, 5.5 kupaonica i garažu za tri automobila, s vremenom još uvijek dostupnim za personalizaciju odabranih završnih radova. Dizajnirana za moderni život i jednostavno zabavljanje, kuća također uključuje zapanjujući bazen veličine 20' x 40', stvarajući privatni dvorišni raj. Kuhinja za kuhare opremljena je vrhunskim aparatima uključujući Sub-Zero hladnjak, Wolf štednjak i Bosch perilicu posuđa, a upotpunjuju je elegantne kvarcne radne površine i besprijekorna izrada kroz cijelu kuću. Spektakularni glavni suite nudi mirno utočište s dva velika walk-in ormara i luksuznom kupaonicom inspiriranom spa centrom s kadom za namačivanje, tušem, dvostrukim umivaonikom i kvarcnim radnim površinama. Idealno smještena blizu stanice Metro-North s 36-minutnom vožnjom do Grand Central Terminala, te unutar visoko cijenjenog, nagrađivanog školskog okruga Dobbs Ferry. Rijeka prilika da uživate u sofisticiranom životu u novoj gradnji u jednom od najpoželjnijih Rivertown susjedstava Westchestera. Planovi čekaju konačna odobrenja.
Luxurious new construction in prestigious Ardsley Park! Located in the charming village of Dobbs Ferry, this prime home offers nearly 8,000 square feet of beautifully designed living space including a finished lower level. This exceptional, custom house features five spacious bedrooms, 5.5 baths, and a three-car garage, with time still available to personalize select finishes. Designed for modern living and effortless entertaining, the home also includes a stunning 20’ x 40’ swimming pool, creating a private backyard oasis. The chef’s kitchen is outfitted with premium appliances including a Sub-Zero refrigerator, Wolf range, and Bosch dishwasher, complemented by elegant quartz countertops and impeccable craftsmanship throughout. The spectacular primary suite offers a serene retreat with two, large walk-in closets and a luxurious spa-inspired bath with soaking tub, shower, double vanity, and quartz counters. Ideally located close to the Metro-North train station with a 36-minute commute to Grand Central Terminal, and within the highly regarded, award-winning Dobbs Ferry School District. A rare opportunity to enjoy sophisticated, new-construction living in one of Westchester’s most desirable Rivertown neighborhoods. Plans are waiting final approvals.
This information is not verified for authenticity or accuracy and is not guaranteed and may not reflect all real estate activity in the market. Listing courtesy of Coldwell Banker Realty © 2026







