| ID # | 973240 |
| Detalji nekretnine | eksterijer: 0.12 jutara (DOM): 0 days |
| Porezi (godišnje) | $972 |
![]() |
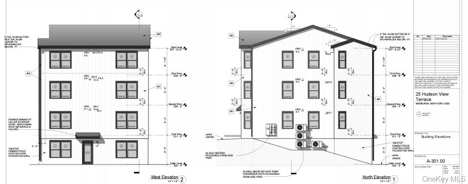
Dobrodošli, graditelji i vizionari! Dva zemljišta prodana zajedno kao razvojna prilika. Vlasnički planovi i prethodni materijali za prijavu mogu se dostaviti kako bi pomogli informirati i potencijalno pojednostaviti budući postupak odobravanja. Vlasnici su podijelili nekretninu, stvarajući jednu od većih zoniranih stambenih parcela u gradu Newburgh. Prodavatelji neće stjecati prethodna odobrenja niti obavljati dodatne poslove vezane uz prava prije prodaje. Ova ponuda je idealna za kupce koji žele prilagoditi gradnju prema vlastitoj viziji i specifikacijama. Prethodni planovi su podijeljeni samo kao referenca i inspiracija. Ako je potrebno, arhitekt koji je pripremio originalne planove dostupan je i spreman pomoći u novoj prijavi kako bi ubrzao vaš proces. Nalazi se u željenom susjedstvu izvan Povijesne četvrti East End.
Welcome, builders and visionaries! Two lots sold together as a development opportunity. Owners blueprints and prior application materials can be provided to help inform and potentially simplify a future approval process. The owners have subdivided the property, creating one of the larger zoned residential parcels in the City of Newburgh. Sellers will not be obtaining pre-approvals or performing additional entitlement work prior to sale. This offering is ideal for buyers seeking to custom-build to their own vision and specifications. The prior plans are shared for reference and inspiration only. If needed, the architect who prepared the original plans is available and willing to assist with a new submission to help expedite your process. Located in a desirable neighborhood outside the East End Historic District.
This information is not verified for authenticity or accuracy and is not guaranteed and may not reflect all real estate activity in the market. Listing courtesy of ReAttached © 2026







