| ID # | RLS20049769 |
| Detalji nekretnine | 5 spavaća soba, 3 kupaonica, 2 WC, perilica posuđa, perilica rublja, sušilica rublja, unutrašnjost: 3080 ft2, 286m2 (DOM): 108 days |
| Godina izgradnje | 1899 |
| Porezi (godišnje) | $5,028 |
| Autobus | 1 minuta: B26, B47 |
| 6 minuta: B46, B7, Q24 | |
| 7 minuta: B25, B52 | |
| Metro | 7 minuta: J, Z |
| 8 minuta: C | |
| 10 minuta: A | |
| Vlak | 1.2 milja: "East New York" |
| 1.4 milja: "Nostrand Avenue" | |
![]() |
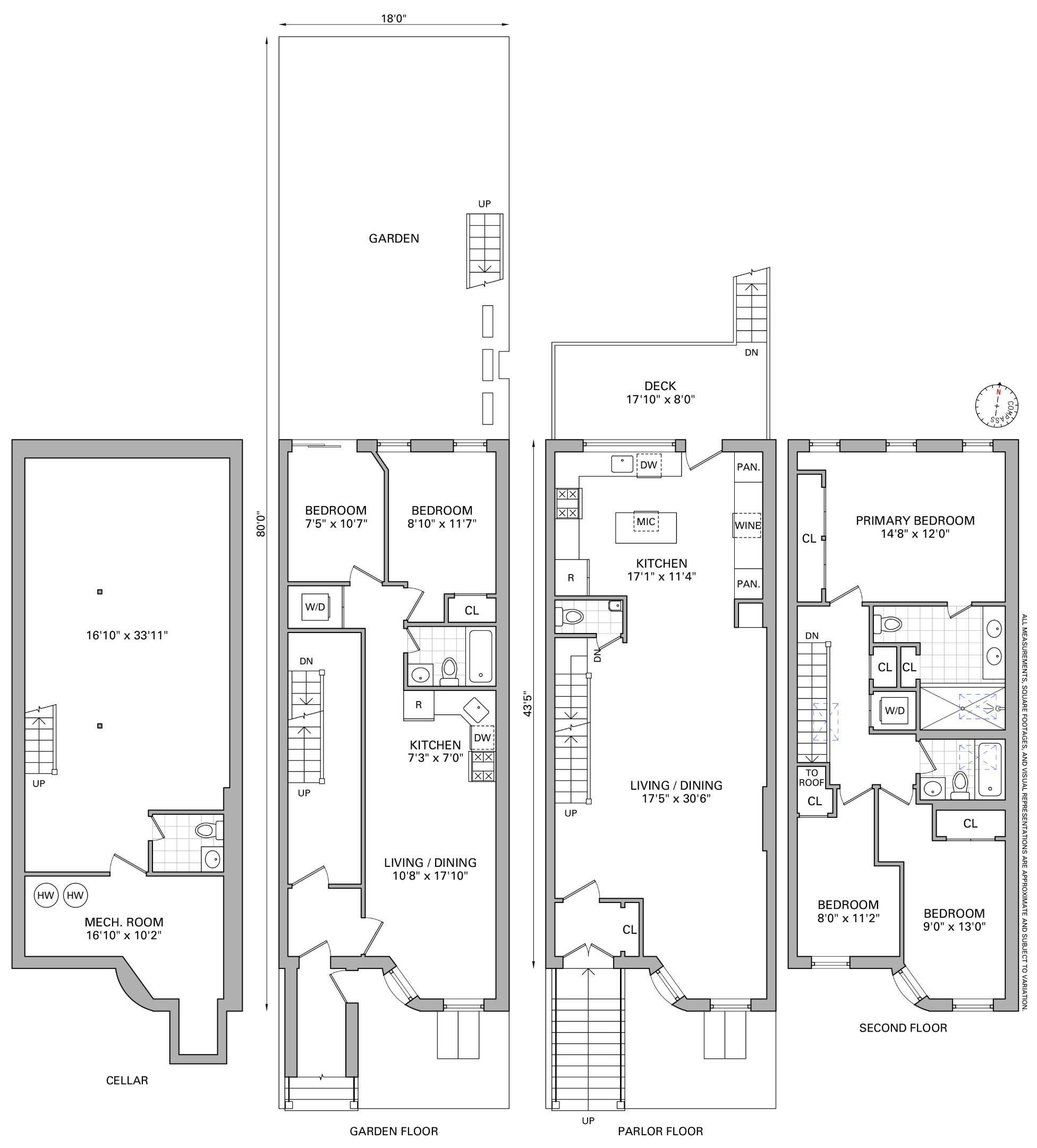
Smještena u ulici prepunoj drveća u Bedford-Stuyvesantu, ulica 707 Macon pažljivo je renovirana kako bi spojila povijesni šarm s modernim senzibilitetom. Ova dvokatnica nudi 5 spavaćih soba kroz prostran raspored, idealan za svakodnevno življenje i zabavu.
Unutra, prirodna svjetlost ulazi kroz velike prozore, ističući široke drvene podove i otvoren, prozračan raspored. Srce doma je kuhinja dizajnera, koja se ponosi mramornim radnim površinama, po mjeri izrađenim ormarićima i vrhunskim Thermador nehrđajućim aparatima, uključujući štednjak s šest plamenika. Frigidaire vino hladnjak dodaje savršeni završni dodir, stvarajući idealno okruženje za kuhanje i okupljanje.
Kupaonice su studija stila i majstorske izrade: zamislite walk-in tuševe nalik spa-u obložene upečatljivom zelenom pločicom, kade sa svjetlom iz krovnih prozora i tople drvene ormariće s kamenim radnim površinama. Svaki prostor djeluje mirno, uzvišeno i dizajnirano za svakodnevne užitke.
Na katu, mirne spavaće sobe nude pogled kroz lišće i fleksibilnu upotrebu za goste, kućni ured ili kreativni studio. Na razini vrta nalazi se svijetli stan s dvije spavaće sobe i jednom kupaonicom, prostrani dnevni boravak, elegantna kuhinja opremljena nehrđajućim aparatima, duboka kada za kupanje, perilica i sušilica rublja unutar jedinice, te izravan pristup dvorištu. Bilo da se koristi kao stilizirani hotelski suite ili kao prostor za iznajmljivanje koji donosi prihod, ovaj prostor nudi izvanrednu fleksibilnost.
Svaki detalj ove elegantne renovacije pažljivo je kuriran — od zoniranog središnjeg grijanja i ugrađenih zvučnika do ormara po mjeri, restauriranih lajsni, dvostruko staklenih prozora i širokih hrastovih podova — sve se to zajedno stvara dom koji besprijekorno balansira luksuz, udobnost i modernu inovaciju.
Sa svojom obnovljenom fasadom iz pred rata, vrhunskim završnim obradama i svakim modernim unapređenjem, 707 Macon Street pruža rijetku priliku da posjedujete gotov dom u Brooklynu koji slavi i baštinu i dizajn.
Jedna od mnogih prednosti življenja ovdje je blizina raznolike ponude odličnih restorana. Na samo nekoliko minuta udaljenosti nalaze se lokalne dragulje poput Trad Room, Laziza, Sonara, Bada Boom, Olmo, Dick & Jane’s i Chez Alex. Obližnji parkovi nude terene i igrališta, dok A/C vlakovi, autobus B26 i 20 minuta vožnje do JFK osiguravaju jednostavnu povezanost.
Nestled on a tree-lined block in Bedford-Stuyvesant, 707 Macon Street has been thoughtfully gut-renovated to blend historic charm with a fresh, modern sensibility. This two-story townhouse offers 5 bedrooms across a generous layout, ideal for both everyday living and entertaining.
Inside, natural light floods through oversized windows, highlighting wide-plank hardwood floors and an open, airy flow. The heart of the home is the designer kitchen, featuring marble countertops, custom cabinetry, and premium Thermador stainless-steel appliances, including a six-burner stove. A Frigidaire wine fridge adds the perfect finishing touch, creating an ideal setting for both cooking and gathering.
Bathrooms are a study in style and craftsmanship: think spa-like walk-in showers clad in striking green tile, skylit soaking tubs, and warm wood vanities topped with stone counters. Each space feels serene, elevated, and designed for daily indulgence.
Upstairs, tranquil bedrooms offer leafy views and flexible use for guests, home office, or creative studio. The garden level hosts a bright two-bedroom, one-bath residence, spacious living room, sleek kitchen outfitted with stainless-steel appliances, a deep soaking tub, in-unit washer and dryer, and direct access to the backyard. Whether used as a stylish guest suite or as an income-generating rental, this space offers remarkable flexibility.
Every detail of this elegant renovation has been meticulously curated — from zoned central air and built-in speakers to custom closets, restored moldings, double-pane windows, and wide-plank oak floors — all coming together to create a home that seamlessly balances luxury, comfort, and modern innovation.
With its restored pre-war façade, high-end finishes, and every modern upgrade, 707 Macon Street delivers a rare opportunity to own a turnkey Brooklyn home that celebrates both heritage and design.
One of the many perks of living here is the proximity to a diverse selection of excellent dining spots. Just minutes away you’ll find local gems like Trad Room, Laziza, Sonara, Bada Boom, Olmo, Dick & Jane’s and Chez Alex. Nearby parks offer courts and playgrounds, while the A/C trains, B26 bus, and a 20-minute drive to JFK ensure effortless connectivity.
This information is not verified for authenticity or accuracy and is not guaranteed and may not reflect all real estate activity in the market. ©2025 The Real Estate Board of New York, Inc., All rights reserved.







