| ID # | RLS20052021 |
| Detalji nekretnine | 5 spavaća soba, 3 kupaonica, perilica rublja, sušilica rublja, unutrašnjost: 2430 ft2, 226m2 (DOM): 89 days |
| Godina izgradnje | 1899 |
| Porezi (godišnje) | $5,184 |
| Autobus | 1 minuta: B26 |
| 2 minuta: B47 | |
| 4 minuta: B46 | |
| 6 minuta: B52 | |
| 8 minuta: B25, B7, Q24 | |
| 10 minuta: B15 | |
| Metro | 8 minuta: J, Z |
| 9 minuta: A, C | |
| Vlak | 1.3 milja: "Nostrand Avenue" |
| 1.3 milja: "East New York" | |
![]() |
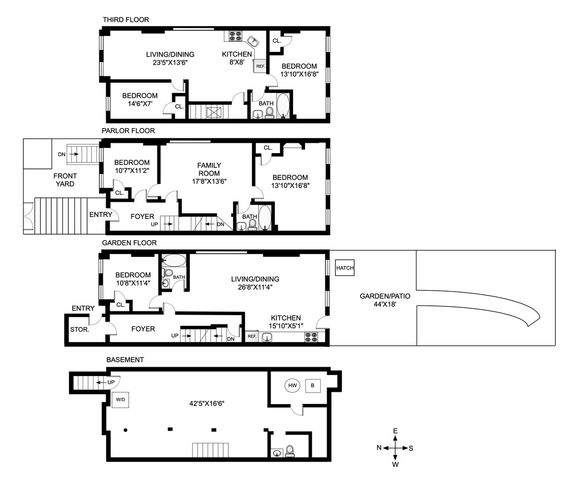
Bed Stuy dvofamilijarna kuća na traženoj ulici Halsey s ogromnim potencijalom.
Izgrađena 18 x 45 na parceli dubokoj 100 ft, zgrada je trenutno organizirana kao donji dupleks s 3 spavaće sobe i 2 kupaonice koji se proteže kroz vrt i salon razine s pristupom dvorištu i podrumu, dok se na gornjem katu nalazi jednosobni stan s 2 spavaće sobe i 1 kupaonicom.
Smještena između Ralph i Patchen Avenije, u blizini nekih od omiljenih sadržaja u četvrti na Malcolm X Boulevardu i Broadwayu, kao i prijevoza s J, Z, A i C vlakovima u blizini.
Bed Stuy Two Family Brownstone on coveted Halsey Street with huge upside potential.
Built 18 x 45 on a 100 ft deep lot the building is currently set up with a lower 3 bedroom / 2 bathroom duplex that spans across the garden & parlor levels with access to the backyard and cellar while the top floor hosts a 2 bedroom / 1 bathroom unit.
Located between Ralph and Patchen Ave and in proximity to some of the neighborhoods' favorite amenities on Malcolm X Blvd and Broadway as well as transportation with the J, Z, A & C trains all nearby.
This information is not verified for authenticity or accuracy and is not guaranteed and may not reflect all real estate activity in the market. ©2025 The Real Estate Board of New York, Inc., All rights reserved.







