| ID # | RLS20050764 |
| Detalji nekretnine | 5 spavaća soba, 3 kupaonica, 2 WC, perilica posuđa, perilica rublja, sušilica rublja, unutrašnjost: 2850 ft2, 265m2 (DOM): 158 days |
| Godina izgradnje | 1899 |
| Porezi (godišnje) | $4,308 |
| Autobus | 0 minuta: B26, B47 |
| 6 minuta: B46, B52, B7, Q24 | |
| 8 minuta: B25 | |
| Metro | 7 minuta: J, Z |
| 9 minuta: C | |
| Vlak | 1.2 milja: "East New York" |
| 1.4 milja: "Nostrand Avenue" | |
![]() |
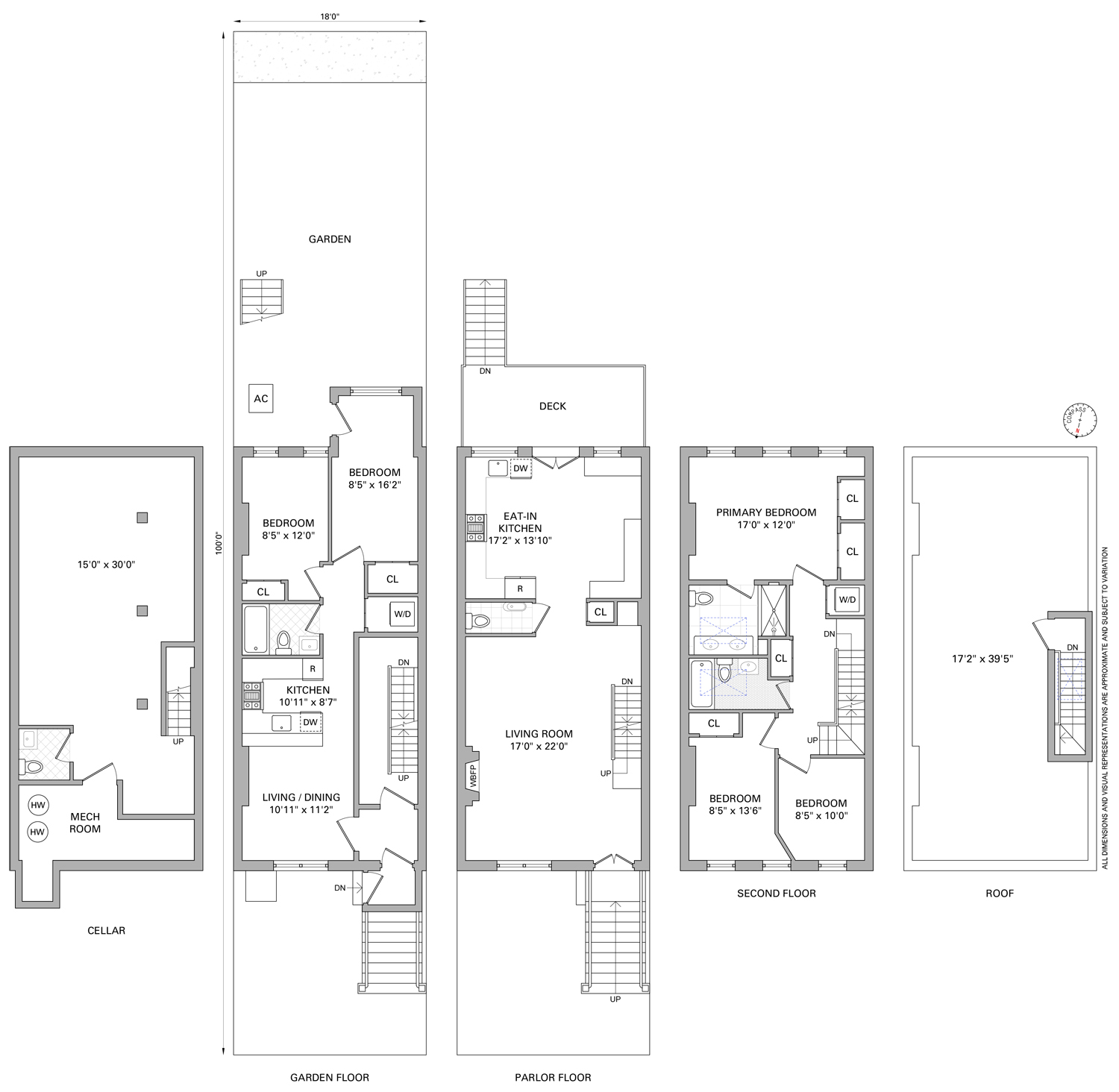
Izvorno sagrađena 1899. godine, ulica Halsey 768 pažljivo je preuređena u prekrasno dizajniranu kuću za dvije obitelji koja savršeno balansira klasičnu šarm branstona s modernom sofisticiranošću. Proteže se na tri kata plus uređeni podrum, ova zapanjujuća rezidencija nudi pet spavaćih soba, tri puna kupaonice, dvije toalete, uređeni podrum, prostranu stražnju terasu s pogledom na privatni vrt i krovnu terasu.
Duplex vlasnika dočekuje vas širokim parketom od bijelog hrasta i obiljem svjetla sa sjeverne i južne strane, stvarajući toplu i ugodnu atmosferu. Dnevni boravak je obogaćen kaminom na drva—rijetkom i bezvremenskom značajkom. Kuhinja za kuhare je pravi dragulj, s mramornim radnim plohama, prilagođenim kuhinjskim elementima, velikim umivaonikom i vrhunskim aparatima: plinskom peći Wolf s šest plamenika i izljevnom pipom, integriranim hladnjakom Fisher & Paykel i Bosch perilicom posuđa. Staklene dvostruke vrata iz kuhinje otvaraju se prema južno orijentiranoj terasi, idealnoj za zabave ili uživanje u mirnom jutru s pogledom na uređen vrt.
Na gornjem katu nalaze se tri svijetle spavaće sobe i dvije pune kupaonice. Najviši kat—osvijetljen s tri krovna prozora—pun je prirodnog svjetla tijekom cijelog dana. Glavna suite okrenuta prema stražnjoj strani nudi mirno utočište sa zidom ormara i luksuznom kupaonicom s en suite koja se sastoji od dvostruke umivaonice, kade i tuša sa staklenom pregradom. Odatle uživajte u nevjerojatnoj pogodnosti izravnog pristupa vlastitoj krovnoj terasi.
Razina vrta uređena je kao zaseban, pažljivo dizajniran apartman s dvije spavaće sobe i jednom kupaonicom s izravnim pristupom u dvorište—savršeno za iznajmljivanje ili ugostiteljstvo gostiju i proširene obitelji.
Smještena u srcu Stuyvesant Heightsa, kuća je okružena omiljenim mjestima u susjedstvu uključujući Trad Room, Brooklyn Residency i Chez Oskar za objedovanje, Milk & Pull i Passionfruit Coffee za kafić kulturu, te Turtles All the Way Down i Therapy Wine Bar za večernja pića.
Pogodna lokacija blizu A i C vlakova omogućuje jednostavan pristup kroz Brooklyn i Manhattan. Za putnike, zračna luka JFK udaljena je samo 30 minuta vožnje.
S centralnim klima uređajem, prilagođenim drvenim radovima i bezvremenim dizajnerskim detaljima tijekom cijele kuće, ulica Halsey 768 je rezidencija spremna za useljenje koja ispunjava sve kriterije—spremna za život i ljubav dugi niz godina.
Originally built in 1899, 768 Halsey Street has been meticulously transformed into a beautifully designed two-family townhouse that perfectly balances classic brownstone charm with modern sophistication. Spanning three stories plus a finished cellar, this stunning residence offers five bedrooms, three full bathrooms, two powder rooms, a finished basement, a spacious rear deck overlooking the private garden, and a roof deck.
The owner’s duplex welcomes you with wide-plank white oak floors and abundant northern and southern light, creating a warm and inviting space. The living room is anchored by a wood-burning fireplace—a rare and timeless feature. The chef’s kitchen is a showpiece, boasting marble countertops, custom cabinetry, an oversized sink, and top-of-the-line appliances: a six-burner Wolf gas range with pot filler, integrated Fisher & Paykel refrigerator, and Bosch dishwasher. Glass double doors off the kitchen open onto a south-facing deck, ideal for entertaining or enjoying a quiet morning overlooking the landscaped garden.
Upstairs, you will find three bright bedrooms and two full baths. The top floor—illuminated by three skylights—is flooded with natural light throughout the day. The rear-facing primary suite offers a serene retreat with a wall of closets and a luxurious en-suite bath featuring a double vanity, soaking tub, and glass-enclosed rain shower. From here, enjoy the incredible bonus of direct access to your private rooftop deck.
The garden level is configured as a separate, thoughtfully designed two-bedroom, one-bathroom apartment with direct backyard access—perfect for rental income or hosting guests and extended family.
Nestled in the heart of Stuyvesant Heights, the home is surrounded by neighborhood favorites including Trad Room, Brooklyn Residency, and Chez Oskar for dining, Milk & Pull and Passionfruit Coffee for café culture, and Turtles All the Way Down and Therapy Wine Bar for evening drinks.
Conveniently located near the A and C trains, the home offers easy access across Brooklyn and into Manhattan. For travelers, JFK Airport is just a 30-minute drive away.
With central air conditioning, custom millwork, and timeless design details throughout, 768 Halsey Street is a turnkey residence that delivers on every front—ready to be lived in and loved for years to come.
This information is not verified for authenticity or accuracy and is not guaranteed and may not reflect all real estate activity in the market. ©2025 The Real Estate Board of New York, Inc., All rights reserved.







