| ID # | RLS20051198 |
| Detalji nekretnine | 4 spavaća soba, 2 kupaonica (DOM): 173 days |
| Godina izgradnje | 1915 |
| Porezi (godišnje) | $7,020 |
![]() |
Rijetka prilika u Westchester Square!
Ne propustite svoju priliku da postanete vlasnik ove potpuno odvojene kuće na željenoj kutnoj parceli u srcu Westchester Square. Savršeno smještena samo nekoliko blokova od stanice podzemne željeznice Westchester Square i ekspresne linije 6, ova nekretnina nudi neusporedive pogodnosti i pristupačnost.
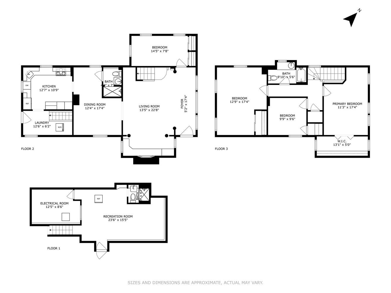
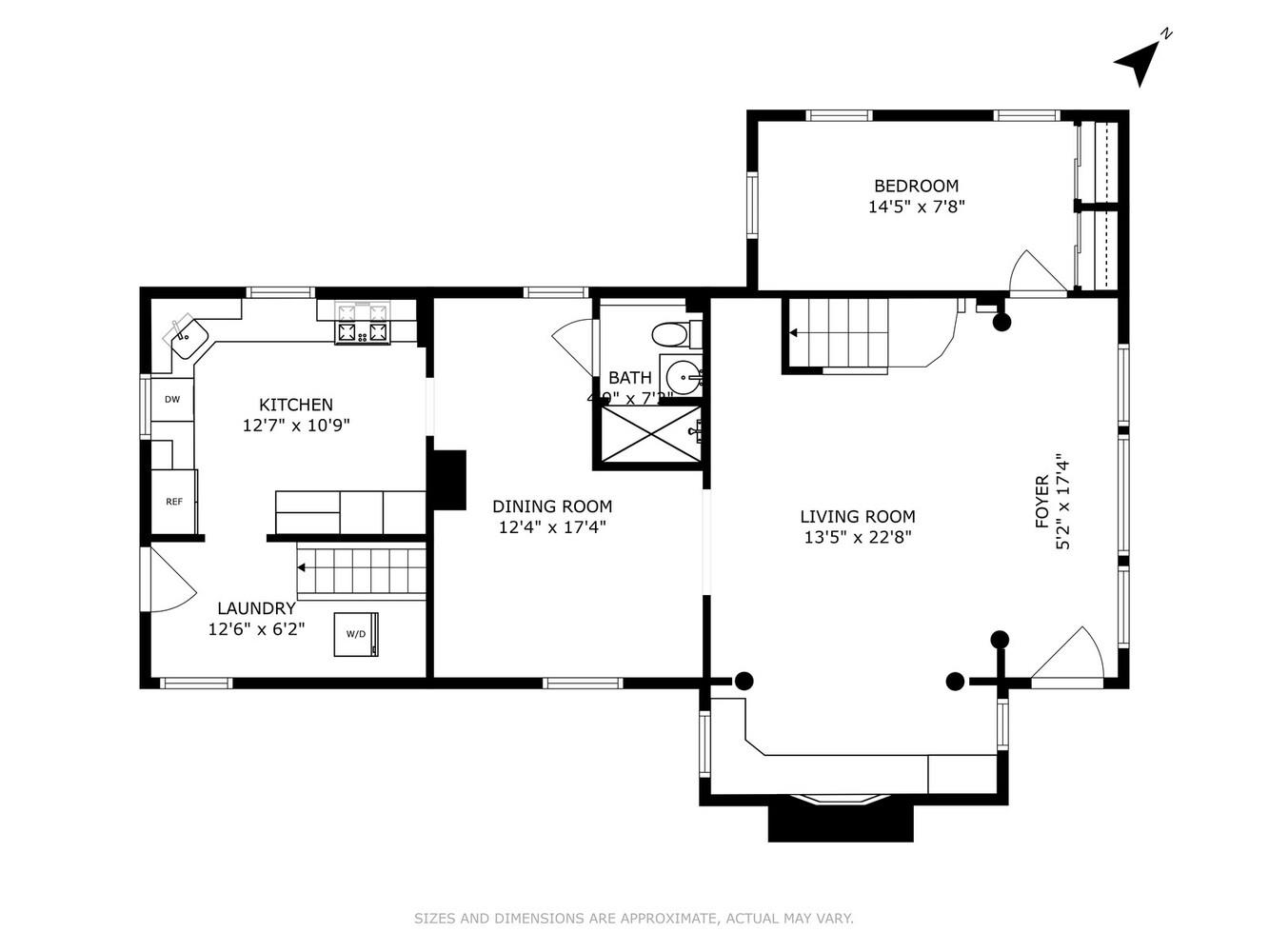
Unutra ćete pronaći velike, svijetle sobe s drvenim podovima kroz cijeli prostor, prostranu kuhinju i prozore s dvostrukim oknima koji unose obilje prirodne svjetlosti. Kuća također ima generozni podrum s kupaonicom, što nudi beskrajne mogućnosti prilagodbe - bilo da želite stvoriti prostor za rekreaciju, kućni ured ili apartman za goste.
Prava odlika ove nekretnine je ogromna odvojena garaža za dva automobila, koja pruža dovoljno prostora za pohranu i parkiranje - neprocjenjiva pogodnost u gradu.
Uživajte u najboljem od oba svijeta: mirnom, stambenom okruženju dok ste samo kratka šetnja od trgovina, restorana, škola i prometa.
Ovo je rijetka prilika na koju ste čekali - rezervirajte svoj privatni obilazak već danas!
Rare Opportunity in Westchester Square!
Don't miss your chance to own this fully detached home on a desirable corner lot in the heart of Westchester Square. Perfectly situated just blocks from the Westchester Square subway station and the express 6 line, this property offers unbeatable convenience and accessibility.
Inside, you'll find large, sun-filled rooms with hardwood floors throughout, a spacious kitchen, and double-hung windows that bring in plenty of natural light. The home also features a generous basement with a bathroom, offering endless possibilities for customization-whether you're looking to create a recreation room, home office, or guest suite.
A true highlight of this property is the huge detached two-car garage, providing ample storage and parking-an invaluable bonus in the city.
Enjoy the best of both worlds: a quiet, residential setting while being just a short walk to shops, dining, schools, and transportation.
This is the rare opportunity you've been waiting for-schedule your private tour today!
This information is not verified for authenticity or accuracy and is not guaranteed and may not reflect all real estate activity in the market. © 2026 The Real Estate Board of New York, Inc., All rights reserved.







