| ID # | 892335 |
| Detalji nekretnine | eksterijer: 0.17 jutara (DOM): 89 days |
| Porezi (godišnje) | $5,877 |
![]() |
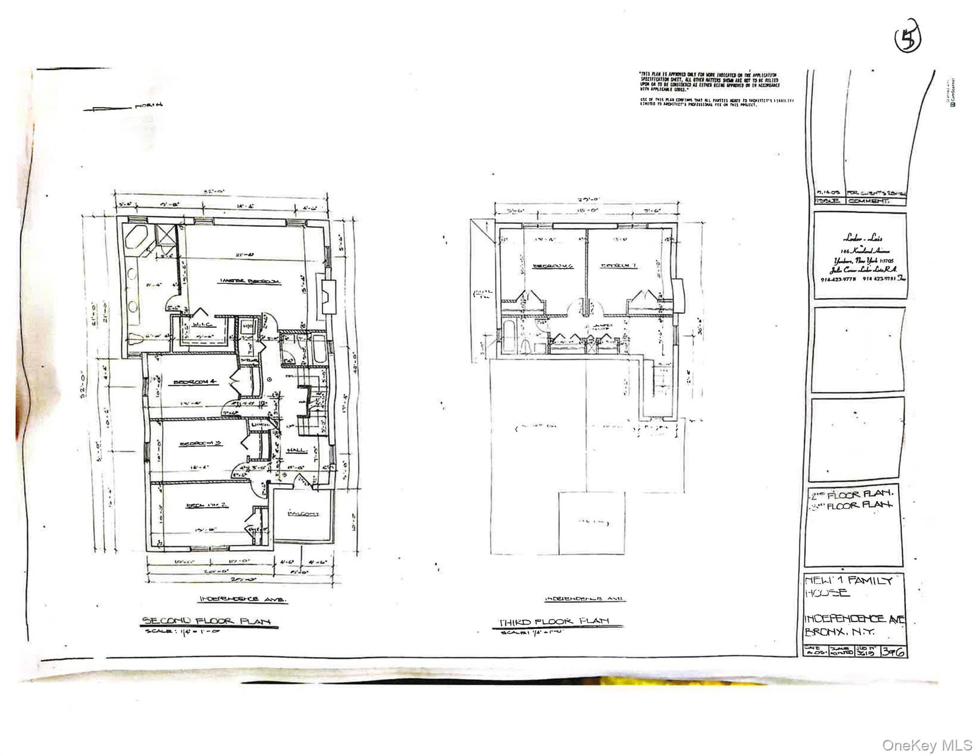
Nekretnina je ravno zemljište na uglu Ave. neovisnosti ispred 6015 Ave. neovisnosti. Vidljiva s ulice - bez ograde. Odvojeni blok i parcela. Gradite prema trenutnim predloženim planovima koji su podneseni DOB-u ili prema vlastitim specifikacijama u jednom od najelitnijih četvrti NYC-a (North Riverdale), za profit kao investitor ili za vlastito uživanje. Planovi su podneseni s dovršenim fazama I i II okolišnog istraživanja, uključujući bušenja i geotehnički izvještaj. (Pogledajte priložene planove). Trenutni predloženi planovi za obiteljsku kuću s TRI kupaonice i SEVEN spavaćih soba na tri razine stambenog prostora + podrum i potkrovlje. BLOK 5955, PARCELA 616, ZONIRANJE R1-2; 69 široka i 103 duboka = Ukupno kvadratnih metara 7,510. MAX FAR .5 / za procijenjeni ukupni MAX FAR od 3,755 KVADRATA. / Može se prodati odvojeno ili zajedno s dva spojena zemljišta - Blok 5955 parcele 614 (MLS 890641) i 613 (MLS 892411). Ova zemljišta se nalaze pored drugih nekretnina vrijednih milijun dolara. Dvije od njih su prazne. Cijeli video dostupan na YouTube-u. Informacije su smatrane točnima, ali moraju se neovisno provjeriti.
Property is level land at the corner of Independence Avenue in front of 6015 Independence Avenue. Visible form street - no fencing. Separate block and lot.Build with current proposed plans submitted to DOB or to your own specification in one of NYC most elite neighborhoods (North Riverdale), for profit as a developer or your own enjoyment. Plans submitted with Phase I and Phase II environmental completed including borings & Geotechnical report. (See plans attached). Current proposed plans for a SEVEN BEDROOM, THREE BATH one family on three levels of living space + a cellar and attic space. BLOCK 5955, LOT 616, ZONING R1-2; 69 wide by 103 deep = Total sq. ft. 7,510. MAX FAR .5 / for an estimated total MAX FAR of 3,755 SQ. FT. / Can be sold separately or in conjunction with two connected lots-Block 5955 lots 614 (MLS 890641) and 613 (MLS 892411). These lots are located in next to other million dollar properties. Two of which are vacant. Full video available on you tube. Information deemed accurate but must be independently verified. © 2025 OneKey™ MLS, LLC







